1. Tuyển Mod quản lý diễn đàn. Các thành viên xem chi tiết tại đây

Khám phá mẫu biệt thự 3 tầng diện tích 150m2 mặt tiền 13m đẹp

Chủ đề trong 'Xây dựng' bởi kientrucstq, 23/08/2016.

  1. 1 người đang xem box này (Thành viên: 0, Khách: 1)
  1. kientrucstq

    kientrucstq Thành viên quen thuộc

    Tham gia ngày:
    14/07/2016
    Bài viết:
    102
    Đã được thích:
    0
    [​IMG]

    Mẫu biệt thự với diện tích 150m2 thiết kế theo phong cách tân cổ điển được xây dựng trên ô đất tương đối rộng khoảng 350m2 ở Thanh Oai do ông Thọ làm chủ đầu tư với kinh phí đầu tư 2,2 tỉ VNĐ.

    Là một người hết sức thành công trong công việc đồng thời là người đàn ông bản lĩnh, tâm lý, quan tâm, chăm lo cho gia đình, cũng là người có vốn hiểu biết về các kiểu kiến trúc của Pháp nên ông Thọ mong muốn xây dựng một không gian sống riêng mang nét cổ điển của Pháp nhưng cũng không thiếu đi sự hiện đại, sang trọng. Sau quá trình trao đổi nắm bắt được những mong muốn, yêu cầu của gia chủ, các kỹ sư của chúng tôi đã đưa ra mẫu thiết kế biệt thự 3 tầng 150m2 theo phong cách tân cổ điển. Mẫu biệt thự mang những nét độc đáo, mới lạ, nổi bật ở trung tâm của khu đất, mang đậm phong cách riêng của gia chủ.

    Thông số mẫu thiết kế biệt thự 3 tầng 150m2 theo phong cách tân cổ điển với chi phí đầu tư 2,2 tỉ VNĐ.
    1. Mẫu biệt thự: BT230412

    2. Số tầng: 3 tầng

    3. Chủ đầu tư: ông Thọ

    4. Địa chỉ: Thanh Oai

    5. Mặt tiền: 13m

    6. Chiều sâu: 13.2m

    7. Kích thước ô đất: 350m

    8. Kiến trúc sư thiết kế: Đỗ Thị Hương

    9. Kỹ sư kết cấu: Nguyễn Văn Hưng

    10. Kỹ sư điện nước: Nguyễn Văn Cao

    11. Năm thi công: 2016

    12. Kinh phí đầu tư dự kiến: 2.2 tỷ VNĐ

    13. Thông số công năng diện tích:

    • Tầng 1: 1 phòng khách, 2 phòng ngủ, 1 phòng bếp, 1 phòng vệ sinh chung, diện tích 150m2.
    • Tầng 2: 1 phòng sinh hoạt chung, 3 phòng ngủ, 2 phòng vệ sinh, diện tích 150m2.
    • Tầng 3: 1 phòng thờ, 2 phòng ngủ, 1 phòng vệ sinh chung, sân chơi, sân phơi diện tích 150m2.
    Phối cảnh mẫu biệt thự 3 tầng 150m2 mang phong cách tân cổ điển
    [​IMG]

    Phối cảnh 1: Thiết kế biệt thự 3 tầng 150m2 ở Thanh Oai

    Biệt thự 3 tầng 150m2 ở Thanh Oai được thiết kế theo hướng Tây Bắc hợp với tuổi ông Thọ 1975 (Ất Mão), thuộc mệnh thuỷ, quẻ mệnh Đài (kim) thuộc Tây Tứ mệnh và khu đất mặt tiền hiện tại. Hướng Tây Bắc – Sinh khí là hướng tốt nhất và đây là hướng sẽ đem lại phúc lộc toàn vẹn cho gia chủ. Mẫu biệt thự được sử dụng màu trắng sữa làm tone màu chủ đạo. Đặc biệt đây là tone màu hợp phong thuỷ, hợp với tuổi của ông Thọ. Chủ nhà sinh năm 1975 thuộc bản mệnh Đại Khê Thuỷ nên lựa chọn màu trắng sữa là phương án hợp lý nhất, sẽ đem lại sự may mắn, an lành, thịnh vượng cho gia chủ.

    Chúng tôi lựa chọn cho mẫu biệt thự hệ mái thái đa chiều màu nâu, với độ dốc cao tạo sự thông thoáng, bảo vệ nội thất của ngôi nhà, giúp thoát nước dễ dàng vào mùa mưa. Màu nâu của phần mái nổi bật trên tone màu trắng sữa tự nhiên, thanh thoát mang đến vẻ cổ điển cho lối kiến trúc. Loại ngói mà chúng tôi sử dụng là ngói Thái M15, là một trong những thương hiệu quy tín được ưa chuộng hiện nay. Ngói Thái M15 có kích thước 330x420mm, số lượng trung bình đạt 9.8-10.2 viên/m2 tuỳ vào thiết kế mái và khoảng cách mè, trọng lượng trung bình mỗi viên khoảng 4kg, độ dốc tối thiểu là 17 độ, độ dốc tối đa là 90 độ, độ dốc tối ưu 30-35 độ. Ngói Thái M15 có giá dao động từ 10.800đ/m2. Được sản xuất trên dây truyền công nghệ cao, ngói Thái ra đời với nhiều kiểu dáng, mẫu mã, màu sắc đa dạng, bền đẹp với thời gian. Ngói Thái ngày càng được sử dụng rộng rãi, có sức cạnh tranh lớn so với các loại ngói khác, được khách hàng hài lòng và tin tưởng.

    Ngoài ra, trên thị trường còn rất nhiều loại ngói và màu sắc khác nhau để quý vị có thể lựa chọn theo sở thích cũng như phù hợp nhất với phong cách ngôi nhà của mình.

    Nhìn bao quát, người xem không thể không ấn tượng với hệ thống cây xanh bao quanh khoảng sân của ngôi biệt thự và bồn trồng cây cảnh, hoa, cỏ nhân tạo xung quanh giáp chân tường mặt tiền tầng 1 tạo không gian sống xanh, trong lành, hoà hợp với thiên nhiên.

    [​IMG]

    Phối cảnh 2: Thiết kế biệt thự 3 tầng 150m2 ở Thanh Oai.

    Mê mẩn với mẫu thiết kế biệt thự 3 tầng mặt tiền 13m ở Thanh Oai mang phong cách tân cổ điển
    Nhìn tổng thể, ngôi biệt thự mặt tiền đẹp ở Thanh Oai mang những nét kiến trúc của Pháp đan xen với phong cách kiến trúc Á Đông, có sự giao thoa giữa lối kiến trúc truyền thống và hiện đại. Mẫu thiết kế mang những hình khối vuông vắn, hoa văn đơn giản nhưng vẫn hết sức tinh tế, thanh thoát đan xen với hơi hướng kiến trúc phương tây với những chi tiết cầu kỳ, tỉ mỉ, mang nét cổ điển nhưng vẫn rất sang trọng. Mặt tiền đẹp mẫu biệt thự 3 tầng 150m2 sở hữu hệ cột trụ vuông vắn thẳng đứng từ thấp lên cao cân xứng, đăng đối. Ở 2 đầu các cột trụ được thiết kế hoa văn tinh sảo, công phu tạo nên những điểm nhấn cho phần mặt tiền. Ban công tầng 2 ở 2 mặt tiền được thiết kế nhô ra phía trước với công năng che nắng, che mưa, bảo vệ nội thất cũng như tạo sự khác biết, tránh sự khô cứng cho tổng thể kiến trúc. Lan can tầng 2 được làm bằng những thanh sắt sơn đen, không gỉ, bền đẹp theo thời gian. Với những hoạ tiết đăng đối mang những nét mền mại, uyển chuyển, đảm bảo về mặt thẩm mỹ đồng thời cũng phát huy tối đa chức năng, đem lại sự an toàn, chắc chắn. Và phần lan can mặt tiền tầng 3 sử dụng những con tiện với hoạ tiết cầu kỳ, tinh tế làm nên sự cổ điển. Phần áp mái sử dụng những con tiện và hình tròn nhỏ xinh màu nâu cùng với màu cửa ra vào và khung cửa sổ tạo nên sự liên kết, thống nhất cho mẫu thiết kế. Kết hợp với những đường nét dứt khoát, mạnh mẽ của các khối trụ là phần mái vòm ở mặt tiền tầng 3 tạo sự mềm mại cần có trong kiến trúc. Mẫu thiết kế biệt thự 3 tầng hiện lên với vẻ bề thế, đồ sộ, gây ấn tượng ngay từ cái nhìn đầu tiên, mang những nét đặc trưng cho phong cách tân cổ điển.

    Bên cạnh đó, ngôi biệt thự còn sử dụng hệ cửa gỗ làm cửa ra vào. Chất liệu gỗ được lựa chọn là gỗ…, đảm bảo về mặt thẩm mỹ, cũng như chất lượng, bền đẹp với thời gian lại mang nét cổ điển. Hệ cửa sổ sử dụng là hệ cửa kính 2 cánh và 4 cánh với lớp kính trong suốt cường lực, cách âm tạo sự hiện đại, sang trọng. Nhìn tổng quát, ngôi biệt thự được thiết kế khá nhiều cửa sổ do đó sẽ tận dụng được nguồn ánh sáng và gió tự nhiên tạo không gian thoáng đãng, thoải mái, không bị bó hẹp trong sự đồ sộ, bề thế như vẻ ngoại thất của ngôi nhà.

    Tương xứng với ngôi biệt thự sang trọng với diện tích tương đối rộng là tường rào bao quanh được thiết kế chắc chắn với cánh cổng tự động hiện đại, dễ dàng sử dụng đồng thời bảo đảm về mặt an ninh cho gia chủ cũng như sự an toàn cho cơ sở vật chất hiện có.

    [​IMG]

    Phối cảnh 3: Thiết kế biệt thự 3 tầng 150m2 ở Thanh Oai

    Chi tiết mặt bằng công năng mẫu thiết kế biệt thự 3 tầng 150m2
    [​IMG]
    Mặt bằng tầng 1: Thiết kế biệt thự 3 tầng 150m2

    Mẫu thiết kế biệt thự 3 tầng mang phong cách tân cổ điển với mặt bằng tầng 1.


    Với lợi thế sở hữu khu đất đắc địa với diện tích tương đối rộng, ngoài phần diện tích làm nhà ở thì gia đình ông Thọ có những không gian trồng cây xanh bao quanh nhà và phần sân lớn trước cửa làm khu vực để phương tiện đi lại của các thành viên và cả khoảng sân chơi cho trẻ nhỏ.

    Bước qua bậc tam cấp tiến vào sảnh chính của ngôi nhà sẽ tiến thẳng tới tiền sảnh chính với 1 bên là phòng khách và 1 bên là phòng bếp ăn. Phòng khách rộng 19m2 được bố trí đầy đủ đồ nội thất sang trọng gồm 1 bộ bàn ghế sofa gỗ óc kiểu dáng hiện đại sang trọng, chiếc tủ gỗ dài nằm sát tường có thể tận dụng làm kệ để ti vi. Phòng khách còn được thiết kế 2 cửa sổ 4 cánh lớn. Với kích thước lớn cũng như tấm kính trong suốt, cách âm sẽ tạo một không gian mở, thoáng mát cho căn phòng do tận dụng được nguồn ánh sáng và gió tự nhiên.

    Đối diện phòng khách là phòng bếp ăn rộng 15,6m2 với bộ bàn ăn được làm từ gỗ tự nhiên 8 ghế đầy đủ cho các thành viên trong gia đình, khu vực nấu ăn được thiết kế nằm sát tường vừa tiện lợi trong quá trình sử dụng vừa tiết kiện diện tích, tạo sự gọn gàng, ngăn nắp cho căn phòng. Cũng giống như phòng khách, phòng bếp ăn sở hữu 2 cửa sổ cánh lớn giúp cho không gian thêm sáng sủa, thoáng mát, tạo sự thoải mái khi cả gia đình sum vầy dùng bữa, đồng thời dễ dàng thoát mùi thức ăn còn tồn lại trong phòng.

    Tiến sâu vào bên trong là 2 phòng ngủ và 1 phòng vệ sinh chung ở giữa. Phòng ngủ 1 với diện tích 13.9m2, phòng ngủ 2 là 12.3m2. Hai phòng ngủ đều sở hữu đầy đủ đồ nội thất tiện nghi gồm: giường ngủ làm bằng gỗ óc chó tự nhiên, tủ gỗ đựng quần áo, kệ ti vi. Không gian 2 phòng ngủ khá thoáng đãng, thoải mái nhờ hệ cửa sổ kính 2 cánh và 2 cửa 1 cánh ở 2 bên đầu giường. Phòng vệ sinh chung ở giữa tiện lợi khi sử dụng cũng như tiết kiệm diện tích tầng trệt. Hai phòng ngủ với đồ nội thất trang nhã, tiện lợi phù hợp được thiết kế cho người lớn tuổi trong gia đình và khách đến chơi nhà khi có nhu cầu ở lại.

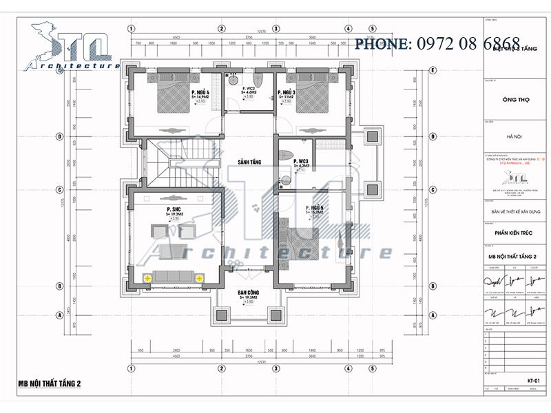
    [​IMG]

    Mặt bằng tầng 2: Mẫu thiết kế biệt thự 3 tầng ở Thanh Oai

    Mẫu thiết kế biệt thự 3 tầng mang phong cách tân cổ với mặt bằng tầng 2.


    Các kỹ sư của chúng tôi đã thiết kế tầng 2 của mẫu biệt thự tạo thành một không gian sinh hoạt riêng cho cả gia đình ông Thọ sau thời gian làm việc mệt mỏi, căng thẳng. Không gian tầng 2 sở hữu 1 phòng sinh hoạt chung với diện tích 19.3m2. Phòng sinh hoạt chung của cả gia đình nên được bố trí đầy đủ đồ nội thất sang trọng, hiện đại như: bộ bàn ghế sofa, tủ gỗ, ti vi phục vụ nhu cầu giải trí, thư giãn của các thành viên. Phòng sinh hoạt chung có 2 cửa kính 4 cánh lớn tạo một không gian mở, thoáng mát, có sự giao hoà với tự nhiên.

    Phòng ngủ 3 có diện tích 14.9m2 và phòng ngủ 4 rộng 11m2 được thiết kế và trang bị đầy đủ nội thất sang trọng giống như 2 phòng ngủ tầng trệt. Tuy nhiên, là một người cha khá tâm lý, ông Thọ cũng hết sức tỉ trong việc lựa chọn đồ nội thất trong phòng của con cái. Phòng ngủ của con gái, ông lựa chọn thiết kế và đồ nội thất màu hồng lung linh, lãng mạn với bộ chăn ga gối đệp Hàn Quốc, bàn trang điểm, rèm cửa bắt mắt, tinh tế hợp với sở thích, tính cách con gái. Còn phòng ngủ cho cậu con trai với màu sắc xanh dương là màu chủ đạo thể hiện sự mạnh mẽ, phong cách và những đồ dùng được lựa chọn theo sở thích, cá tính riêng.

    Phòng ngủ 5 được thiết kế dành riêng cho vợ chồng ông Thọ với phòng ngủ rộng 15,2m2 có phòng vệ sinh khép kín 4.3m2 tạo không gian riêng tư. Phòng ngủ được sắp xếp những đồ nội thất trang nhã sang trọng, gồm có giường ngủ, kệ ti vi, tủ được làm từ gỗ sồi trắng White Oak với cấu trúc vân đẹp, bền sau quá trình sử dụng, chắc chắn, cam kết về chất lượng cũng như mặt thẩm mỹ. Cửa sổ kính 4 cánh thu hút được nguồn ánh sáng và gió tự nhiên vào căn phòng khiến cho cả căn phòng trở nên hài hoà, hiện đại. Phòng vệ sinh có thiết kế cửa kính 2 cánh hướng ra ban công bên ngoài càng làm cho không gian trở nên thoáng đãng, mát mẻ.

    Tầng 2 của mẫu biệt thự được thiết kế ban công khá rộng 9m2. Đứng từ đây, mọi người có thể tận hưởng không khí tự nhiên và phóng tầm mắt bao quát toàn bộ quang cảnh xung quanh.

    [​IMG]

    Mặt bằng tầng 3: Mẫu thiết kế biệt thự 3 tầng ở Thanh Oai

    Mẫu biệt thự 3 tầng 150m2 sang trọng với mặt bằng tầng 3.


    Tầng 3 mẫu biệt thự 150m2 sở hữu 2 phòng ngủ, phòng thờ và sân phơi. Phòng thờ rộng 8.3m3 đặt theo hướng Tây Bắc hợp phong thuỷ sẽ mang lại nhiều may mắn, tài lộc cho gia chủ. Phòng thờ được đặt trên tầng 3 để có được sự linh thiêng, trang nghiêm nhưng vẫn gần gũi, ấm cúng, thể hiện sự thành kính, lòng biết ơn của con cháu đối với tổ tiên. Phòng thờ được thiết cửa kính hướng ra ban công mở ra không gian thoáng đãng, không quá ngột ngạt.

    Hai phòng ngủ 6 và 7 với diện tích lần lượt là 14.9m2 và 12.3m2 được bố trí đầy đủ nội thất tiện sang trọng, hiện đại. Phòng vệ sinh 3.5m2 được đặt ở giữa tiện lợi, vừa tiết kiệm kinh phí cho chủ đầu tư và tiết kiệm diện tích tầng 3.

    Mẫu biệt thự 3 tầng có khoảng sân chơi, sân phơi tương đối rộng 46m2. Đây là không gian hợp lý để phơi quần áo đồng thời cho các thành viên vui chơi, thư giãn, ngắm nhìn khung cảnh tự nhiên sinh động từ gần đến xa.

    [​IMG]

    Mặt đứng trục A-E: Thiết kế biệt thự 3 tầng 150m2 ở Thanh Oai.

    Mẫu thiết kế biệt thự 3 tầng tân cổ điển ở Thanh Oai với chiều cao tầng 1 là 3.9m, chiều cao tầng 2, 3 là 3.6m, chiều cao mái là 3.8 m.

    [​IMG]

    Mặt đứng trục E-A: Mẫu thiết kế biệt thự 3 tầng 150m2 ở Thanh Oai

    [​IMG]

    Mặt đứng trục 1-5: Thiết kế biệt thự 3 tầng 150m2 ở Thanh Oai

    [​IMG]

    Mặt đứng trục 5-1: Thiết kế biệt thự 3 tầng 150m2 ở Thanh Oai.

    Mẫu thiết kế biệt thự đẹp 3 tầng 150m2 theo phong cách tân cổ điển toạ lạc trên ô đất 350m2 ở Thanh Oai được đánh giá cao về mặt thẩm mỹ cũng như công năng sử dụng, hoàn thiện thông số kỹ thuật. Với lợi thế sở hữu khu đất tương đối rộng rãi, căn biệt thự mang phong cách tân cổ điển của gia đình ông Thọ càng trở nên nguy nga, sang trọng, hiện đại, hài hoà với thiên nhiên.

    Nếu quý vị yêu thích mẫu biệt thự sang trọng này, hãy liên hệ với chúng tôi để được tư vấn chi tiết hơn.

    Hotline: 0972 08 6868

Chia sẻ trang này