1. Tuyển Mod quản lý diễn đàn. Các thành viên xem chi tiết tại đây

Mẫu nhà biệt thự 3 tầng diện tích 150m2 mặt tiền 10m BT291609

Chủ đề trong 'Xây dựng' bởi kientrucstq, 29/09/2016.

  1. 0 người đang xem box này (Thành viên: 0, Khách: 0)
  1. kientrucstq

    kientrucstq Thành viên quen thuộc

    Tham gia ngày:
    14/07/2016
    Bài viết:
    102
    Đã được thích:
    0
    Mẫu biệt thự 3 tầng 3 phòng ngủ được xây dựng trên lô đất 200m2 ở Hà Nội mang phong cách kiến trúc cổ điển với các đường nét trang trí đẹp mắt, các phào chỉ uốn lượn cùng với hệ mái ngói đỏ tươi mới. Mẫu nhà này đang trở thành mẫu nhà hot nhất năm 2016 được rất nhiều gia chủ yêu thích và lựa chọn. Sau đây chúng tôi xin giới thiệu với các bạn mẫubiệt thự 3 tầng mái thái 150m2 với 3 phòng ngủ của gia đình anhTrung do kiến trúc sư STQ thiết kế.

    Thông số mẫu thiết kế biệt thự 3 tầng mái thái 3 phòng ngủ mặt tiền 10m
    1. Mẫu biệt thự: BT291609

    2. Số tầng: 3 tầng

    3. Chủ đầu tư: anh Trung

    4. Địa chỉ: Hà Nội

    5. Mặt tiền: 10m

    6. Chiều sâu: 15m

    7. Kích thước ô đất: 200m2

    8. Kích thước xây dựng: 150m2

    9. Kiến trúc sư thiết kế: Đỗ Thị Hương

    10. Kỹ sư kết cấu: Nguyễn Văn Hưng

    11. Kỹ sư điện nước: Nguyễn Văn Cao

    12. Năm thi công: 2016

    13. Kinh phí đầu tư dự kiến: 2,5 tỷ VNĐ

    14. Thông số công năng diện tích:

    - Tầng 1: 1 phòng khách, 1 phòng uống trà, 1 phòng bếp ăn, 1 phòng vệ sinh chung - Diện tích: 150m2

    - Tầng 2: 2 phòng ngủ có vệ sinh khép kín, 1 phòng giúp việc - Diện tích: 150m2

    - Tầng 3: 1 phòng thờ, 1 phòng ngủ vệ sinh khép kín, 1 sân chơi - Diện tích: 150m2.

    Chiêm ngưỡng biệt thự 3 tầng 150m2 mái thái đẹp mắt ở Hà Nội


    [​IMG]

    View 1: Biệt thự cổ điển 3 tầng 150m2 ở Hà Nội

    Mẫu biệt thự 3 tầng 3 phòng ngủ được kiến trúc sư Hương thiết kế trên khu đất rộng phía sau là mảnh đất rộng lớn. Thiết kế nhà 3 tầng hình chữ L sở hữu gam màu trắng ngoại thất, các đường nét trang trí ấn tượng cùng với lan can bằng sắt tạo nên sự sang trọng và đẳng cấp cho gia chủ. Mẫu biệt thự 3 tầng 150m2 sở hữu khối kiến trúc vững chắc với các cột trụ lớn được tính toán 1 cách tỉ mỉ cùng tỉ lệ vàng giúp chống đỡ sức nặng của cả ngôi nhà. Các cột trụ được trang trí hoa văn đẹp mắt cùng các gờ chỉ ấn tượng tạo nên sự hài hòa cũng như nhìn không bị nhàm chán. Hệ mái ngói màu đỏ kết hợp với màu trắng ngoại thất vưa mang lại sự trong trắng tinh khối, vừa thể hiện sức sống, sự nhiệt huyết, sức khỏe dồi dào.

    [​IMG]

    View 2: Phối cảnh nghiêng biệt thự 3 tầng mái thái mặt tiền 10m

    Mẫu thiết kế nhà ở đẹp 3 tầng có khoảng sân rộng lớn được lát gạch Hạ Long đỏ cao cấp có độ bền lớn, màu sắc khó phai và chịu được nhiệt tốt. Với kinh phí đầu tư là 2,5 tỷ VNĐ, biệt thự 3 tầng mái thái mặt tiền 10m được thiết kế đẹp mắt, sang trọng và sở hữu không gian thiên nhiên xanh mát. Bao quanh ngôi nhà là cổng và tường rào cây xanh tiểu cảnh vừa đem lại không khí trong lành, thoáng mát vừa tạo cảm giác thư thái, thoải mái cho tâm hồn. Biệt thự cổ điển 3 tầng có ban công và chỗ vui chơi ở trên tầng 3 và ở các tầng đều bố trí các chậu cây cảnh ở ban công.

    [​IMG]

    View 3: Phối cảnh biệt thự 3 tầng 10x15m mái thái

    Biệt thự 3 tầng 10x15m mái thái sử dụng hệ cửa kính cường lực khung gỗ cho toàn bộ ngôi nhà. Sử dụng cửa kính vừa mang lại ánh sáng, sự thoáng đãng cho không gian nội thất vừa mang lại vẻ đẹp cho cả khối kiến trúc. Kính cường lực là loại kính được gia công ở nhiệt độ cao nên chịu được nhiệt và chịu lực tốt, khó vỡ. Hệ cửa kính được bao bọc bằng khung gỗ nên có độ bền cao, không bị mối mọt và khó bị cong vênh. Hệ mái ngói gồm những viên ngói màu đỏ ốp lên trên lớp xi măng mang lại sự mát mẻ cho cả ngôi nhà. Để nhìn không bị nhàm chán và tạo thêm điểm nhấn cho hệ mái, các kiến trúc sư STQ còn thiết kế thêm những viên ngói uốn lượn bao quanh mái của mẫu biệt thự đẹp.

    Chi tiết mặt bằng của biệt thự 3 tầng mái thái 3 phòng ngủ mặt tiền 10m

    [​IMG]

    Mặt bằng tầng 1 biệt thự cổ điển 3 tầng mái thái 150m2

    Do gia đình anh Trung gồm 5 thành viên là ông bà, vợ chồng anh Trung và một bé gái nên các kiến trúc sư đã thiết kế tầng một với phong cách cổ xưa với 1 phòng uống trà, 1 phòng khách, 1 phòng bếp ăn và 1 phòng vệ sinh chung. Khi bước từ sảnh chính vào là không gian phòng khách 25m2 bố trí các đồ nội thất hiện đại, tiện nghi. Bên cạnh phòng khách cảu biệt thự 3 tầng mái thái 150m2 là phòng uống trà để ông bà và con cháu có thể ngồi ở đây trò chuyện và nhâm nhi bên những tách trà nóng thơm lừng. Phòng bếp ăn rộng rãi có lối liên thông ra sân vườn tạo nên sự thuận tiện khi di chuyển mà không làm ảnh hưởng đến không gian của phòng khách. Không gian phòng bếp ăn được bố trí 1 bộ bàn ăn dài ở giữa phòng, khu nấu nướng tiện nghi với các dụng cụ nấu hiện đại. Phòng vệ sinh chung của tầng 1 được thiết kế gần cửa phụ và cầu thang.

    [​IMG]

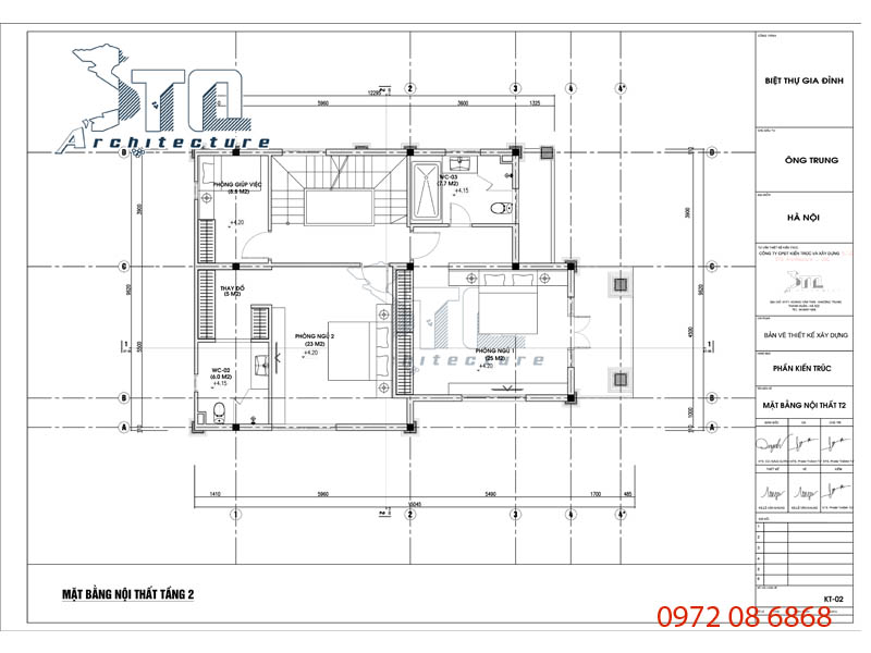
    Mặt bằng tầng 2 của mẫu biệt thự 3 tầng mái thái 3 phòng ngủ

    Biệt thự 3 tầng 150m2 mái thái với mặt bằng tầng 2 gồm 2 phòng ngủ lớn và 1 phòng giúp việc. Phòng ngủ Master có diện tích lớn 34m2 với 1 phòng ngủ lớn, 1 phòng thay đồ và bồn tắm nằm full. Mọi hoạt động cá nhân đều được gói gọn trong căn phòng tạo không gian riêng tư thoải mái cho vợ chồng gia chủ. Ngoài ra kiến trúc nhà đẹp 3 tầng còn có 1 phòng ngủ vệ sinh khép kín dành cho ông bà với 1 phòng giúp việc ở bên cạnh. Vì gai đình có người già và trẻ nhỏ nên phòng của giúp việc phải ở gần kề. Ban công ở phòng ông bà hướng ra ngoài cổng vừa mang lại không gian thoáng đãng cho căn phòng vừa giúp ông bà quan sát những khung cảnh đang diễn ra xung quanh.

    [​IMG]

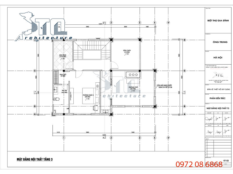
    Mặt bằng tầng 3 - Biệt thự cổ điển 10x15m 3 tầng mái thái

    Phòng thờ ở tầng 3 của biệt thự mái ngói thái 3 tầng 150m2 có diện tích rộng 23m2 là nơi thiêng liêng để con cháu tưởng nhớ đến ông bà, tổ tiên và cầu mong sự an lành, hạnh phúc, đầm ấm cho cả gia đình. Bên canh phòng thờ là phòng ngủ có vệ sinh khép kín được thiết kế gần giống như phòng ngủ tầng 2. Sân chơi 28m2 được bố trí ở 2 bên cầu thang là không gian để trẻ nhỏ vui chơi, đùa nghịch bên gia đình cũng như để phơi phóng và đặt téc nước. Không gian mở mang đến sự thoáng đãng và sáng sủa cho cả mẫu biệt thự 3 tầng mặt tiền 10m.

    Để quý vị và các bạn có cái nhìn khái quát và hiểu rõ hơn về thiết kế của biệt thự 3 tầng mái thái 10x15m, chúng tôi xin giới thiệu một số hình ảnh của bản vẽ biệt thự 3 tầng 3 phòng ngủ này:

    [​IMG]

    Mặt bằng mái - Biệt thự hình chữ L 3 tầng

    [​IMG]

    Mặt đứng trục 4 - 1 của biệt thự 3 tầng cổ điển 150m2

    [​IMG]

    Mặt đứng trục A - D của biệt thự mái thái mặt tiền 10m 3 tầng

    [​IMG]

    Mặt đứng trục D - A biệt thự cổ điển mái ngói 3 tầng

    [​IMG]

    Mặt đứng trục 1 - 4 biệt thự 3 tầng mái thái 10x15m

    Mẫu biệt thự 3 tầng mái thái cổ điển 10x15m 3 phòng ngủ là phương án chúng tôi giới thiệu để các bạn tham khảo. Đây là mẫu nhà đẹp đang trở thành xu hướng của năm nay mà các gia chủ lựa chọn để xây dựng cho ngôi nhà tương lai của mình. Nếu quý vị yêu thích mẫu nhà 3 tầng này, xin liên hệ với công ty chúng tôi để tư vấn miễn phí và nhận những bản thiết kế nhà đẹp.

    CÔNG TY CỔ PHẦN XÂY DỰNG VÀ KIẾN TRÚC STQ

    Địa chỉ: 51/71 HOÀNG VĂN THÁI - THANH XUÂN - HÀ NỘI

    Hotline: 097 208 6868 - kientrucstq@gmail.com

Chia sẻ trang này