1. Tuyển Mod quản lý diễn đàn. Các thành viên xem chi tiết tại đây

Mẫu nhà phố tân cổ 2 mặt tiền 5 tầng 5x12m ở Nam Định NP109217

Chủ đề trong 'Xây dựng' bởi kientrucstq, 26/07/2016.

  1. 1 người đang xem box này (Thành viên: 0, Khách: 1)
  1. kientrucstq

    kientrucstq Thành viên quen thuộc

    Tham gia ngày:
    14/07/2016
    Bài viết:
    102
    Đã được thích:
    0
    Mới đây, công ty kiến trúc STQ mới nhận được yêu cầu từ anh Mạnh Hà ở Nam Định, cung cấp thông tin về mảnh đất anh đang sở hữu cũng như những mong muốn về một ngôi nhà phát huy tối đa công năng sử dụng, phục vụ nhu cầu kinh doanh của gia chủ và mang giá trị thẩm mỹ lớn. Đặc biệt anh là người hết sức quan tâm, yêu thích kiến trúc mới lạ mà sang trọng. Các kiến trúc sư của chúng tôi đã lên ý tưởng thiết kế ngôi nhà mang phong cách Pháp đầy ấn tượng đem tới sự hài lòng và không gian sống ưng ý, tiện nghi nhất cho gia chủ.

    Thông số bản thiết kế nhà phố 5 tầng tân cổ 2 mặt tiền 60m2 ở Nam Định:
    1. Mẫu nhà phố: NP 109217

    2. Số tầng: 5 tầng

    3. Chủ đầu tư: Anh Mạnh Hà

    4. Địa chỉ: Nam Định

    5. Mặt tiền: 5m

    6. Chiều sâu: 12m

    7. Kích thước ô đất: 80m2

    8. Kích thước xây dựng: 60m2

    9. Kiến trúc sư thiết kế: Phạm Thành Tư

    10.Kỹ sư kết cấu: Nguyễn Văn Hưng

    11.Kỹ sư điện nước: Nguyễn Văn Cao

    12.Năm thi công: 2016

    13.Kinh phí đầu tư dự kiến: 2 tỷ VNĐ

    14.Thông số công năng diện tích:

    - Tầng 1: phòng kinh doanh - Diện tích 60m2

    - Tầng 2: phòng khách, phòng bếp ăn - Diện tích 60m2

    - Tầng 3: 2 phòng ngủ, 1 phòng vệ sinh khép kín - Diện tích 60m2.

    - Tầng 4: 1 phòng ngủ có phòng vệ sinh khép kín - Diện tích 60m2.

    - Tầng 5: khu vực quán café, 1 phòng vệ sinh chung - Diện tích 60m2

    - Tầng thượng: khu vực quán café, 1 phòng vệ sinh chung - Diện tích 60m2



    Ngắm nhìn bản thiết kế nhà phố cổ điển 5 tầng 60m2 ở Ý Yên, Nam Định
    [​IMG][​IMG]

    Phối cảnh 1: Nhà phố 5 tầng tân cổ 5x12m 3 phòng ngủ.

    Như đã trao đổi với chúng tôi, gia chủ là anh Mạnh Hà sinh năm 1980 (Canh Thân), quẻ mệnh Khôn Thổ thuộc Tây Tứ Mệnh nên lựa chọn hướng nhà theo hướng Đông Bắc (Sinh Khí). Đây là một trong những hướng nhà rất tốt, hợp phong thuỷ, địa thế mảnh đất gia đình sở hữu, mang tới nhiều may mắn cũng như thuận lợi cho việc làm ăn của gia chủ, phát tài phát lộc.

    Không cần tới những tone quá nổi bật, mẫu thiết kế nhà phố cổ điển 5 tầng 5 phòng ngủ vẫn đầy ấn tượng và tinh tế. Mặt tiền tầng trệt được ốp đá granite vàng, bóng bẩy, tạo điểm nhấn và bảo vệ tường rất tốt khỏi tác động xấu của thời tiết. Càng lên cao, chúng tôi sử dụng đồng nhất sơn ngoại thất màu trắng tinh khôi, tươi sáng. Dòng sơn ngoại thất chống bám bẩn của Mykolor Untra với độ che phủ cao, chống nấm mốc, rong rêu, bề mặt sơn bóng loáng, mịn màng làm tô thêm vẻ đẹp sang trọng, tươi sáng cho ngôi nhà của bạn. Ngoài ra Mykolor có 1040 màu tha hồ cho bạn lựa chọn tuỳ theo sở thích cũng như phong cách mẫu thiết kế. Bên cạnh đó, hãng sơn ngoại thất của Dulux, Spec, Jymec,… cũng rất được yêu thích mà các nhà đầu tư có thể tham khảo.

    Ấn tượng với lối kiến trúc châu Âu sang trọng của mẫu nhà phố 5 tầng 60m2 có phòng kinh doanh.


    Có thể nhận thấy lối kiến trúc mang những nét cổ điển của Pháp hết sức lạ mắt, tinh tế. Sử dụng chủ yếu là những hình khối khoẻ khoắn, mạnh mẽ, tạo hệ cột trụ kéo dài từ tầng 2 tới tầng 4 thêm những đường vân kẻ dọc và hoạ tiết trang trí ở 2 đầu cột tạo điểm nhấn.

    Ban công các tầng có khu vực trồng cây cảnh tạo không gian gần gũi với thiên nhiên đồng thời sử dụng lan can thép sơn đen chống rỉ mang lại sự an toàn và vô cùng sang trọng.

    Toàn bộ hệ thống cửa sổ và cửa ra vào của mẫu nhà phố tân cổnày là sử dụng cửa kính cường lực. Những tấm kính có khả năng chịu nhiệt cao,chịu lực gấp 4-5 lần kính bình thường có cùng độ dày. Đây là vật liệu được sử dụng nhiều trong các công trình bởi chất lượng cũng như giá trị thẩm mỹ mà nó đem lại, thêm nét hiện đại, sang trọng cho mẫu nhà phố tân cổ.

    [​IMG][​IMG]

    Phối cảnh 2: Nhà phố 5 tầng tân cổ 5x12m 3 phòng ngủ.



    Bản thiết kế nhà phố 5 tầng 60m2 với mái Manssard mới lạ, độc đáo


    Mái Manssard được thiết kế theo lối kiến trúc của Pháp không quá cầu kỳ mà vẫn mang tính nghệ thuật cao đồng thời phù hợp với khí hậu miền Bắc, giúp không gian ấm áp vào mùa đông, hạ nhiệt vào mùa hè. Đồng thời tạo điểm nhấn thu hút sự chu ý, thích thú của mọi người.

    Tầng tum được đầu tư trang trí và tạo không gian mở, gần gũi với thiên nhiên, trong lành thoáng mát sẽ là một quán café lý tưởng giúp mỗi vị khách tới đây có những giây phút thực sự thoải mái và thư giãn tận hưởng đồ uống mà mình yêu thích trong khung cảnh lãng mạn, yên bình.

    [​IMG][​IMG]

    Phối cảnh 3: Nhà phố 5 tầng tân cổ 5x12m 3 phòng ngủ.

    Chi tiết mặt bằng công năng mẫu nhà phố 5 tầng 3 phòng ngủ có phòng kinh doanh ở Hà Nam
    [​IMG][​IMG]

    Mặt bằng tầng 1: Nhà phố 5 tầng tân cổ 5x12m 3 phòng ngủ.

    Tầng 1 là khu vực kinh doanh của gia đình. Tận dụng lợi thế của ngôi nhà mặt phố, gia đình anh Mạnh Hà mở cửa hàng kinh doanh rộng khoảng 30m2 buôn bán hàng hoá. Tiến sâu vào bên trong là khu vực cầu thang bộ và thang máy tiện lợi cho việc di chuyển. Một phòng vệ sinh giáp cầu thang tiết kiệm 1 phần diện tích.



    Mặt bằng tầng 2: Nhà phố 5 tầng tân cổ 5x12m 3 phòng ngủ.

    Để tiết kiệm không gian cũng như tạo sự tiện lợi trong sinh hoạt của cả gia đình, 30m2 diện tích tầng 2 là phòng khách với bộ bàn ghế sofa, ngay cạnh là bộ bàn ăn và dãy bàn nấu ăn kê sát tường.

    Cửa ra vào lớn hướng ra ban công giúp không gian trong phòng bớt ngột ngạt, thoáng đãng hơn.

    [​IMG][​IMG]

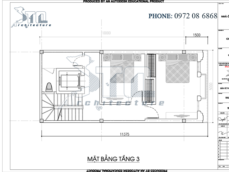
    Mặt bằng tầng 3: Nhà phố 5 tầng tân cổ 5x12m 3 phòng ngủ.

    Tầng 3 gồm 2 phòng ngủ với diện tích lần lượt là 18m2 và 15m2. Phòng ngủ lớn hơn có cửa hướng ra ban công. Các phòng đều được bố trí đầy đủ các đồ nội thất để phục vụ nhu cầu nghỉ ngơi và làm việc của các thành viên như: giường, tủ quần áo, ti vi, máy tính. Một phòng vệ sinh chung ngay phía cầu thang.

    [​IMG][​IMG]

    Mặt bằng tầng 4: Nhà phố 5 tầng tân cổ 5x12m 3 phòng ngủ.

    Tầng 4 là 1 phòng ngủ lớn khoảng 28m2 có phòng vệ sinh khép kín dành cho vợ chồng gia chủ với đầy đủ tiện nghi.

    [​IMG][​IMG]

    Mặt bằng tầng 5: Nhà phố 5 tầng tân cổ 5x12m 3 phòng ngủ.

    [​IMG][​IMG]

    Mặt bằng tầng tum: Nhà phố 5 tầng tân cổ 5x12m 3 phòng ngủ.

    Tầng 5 và tầng tum của ngôi nhà được thiết kế thành không gian quán café hết sức yên tĩnh, thoáng đãng và lãng mạn. Chủ đầu tư đã bố trí khu vực quầy phục vụ cũng như sắp xếp các dãy bàn uống nước hợp lý kết hợp đồ vật trang trí tạo sự lịch sư, sang trọng nhưng vẫn gần gũi thân thiện. Ánh sáng chủ yếu là tận dụng ánh sáng tự nhiên từ hướng mặt tiền và phía sau giếng trời tiết kiệm điện năng cho gia chủ và tạo sự hoà hợp với thiên nhiên.

    [​IMG][​IMG]

    Mặt đứng: Nhà phố 5 tầng tân cổ 5x12m 3 phòng ngủ.

    Chiều rộng mẫu thiết kế là 5m, chiều sâu 12m. Chiều cao tầng 1 là 3.9m, chiều cao tầng 2, 3, 4 là 3.6m, còn tầng 5 và tầng tum là 3.3m. Cửa chính và hệ thống cửa sổ được thiết kế đăng đối, khoa học về kích thước và vị trí cung cấp ánh sáng và gió tự nhiên cho không gian nội thất.

    Mẫu nhà phố 5 tầng 60m2 mang phong cách tân cổ mà chúng tôi giới thiệu trên đây là một trong những mẫu nhà phố được yêu thích mà các KTS của công ty kiến trúc STQ thực hiện đảm bảo công năng sử dụng cũng như được mang tính thẩm mỹ cao. Đặc biệt nó sở hữu phòng kinh doanh và quán café độc đáo, ấn tượng phục vụ việc kinh doanh của gia chủ và không gian thoải mái, riêng tư dành cho gia đình sẽ mang tới sự hài lòng và tiện nghi nhất.

    CÔNG TY CỔ PHẦN XÂY DỰNG VÀ KIẾN TRÚC STQ

    Địa chỉ: 51/71 HOÀNG VĂN THÁI - THANH XUÂN - HÀ NỘI

    Hotline: 097 208 6868 - kientrucstq@gmail.com

Chia sẻ trang này