1. Tuyển Mod quản lý diễn đàn. Các thành viên xem chi tiết tại đây

Mẫu thiết kế nhà phố 3 tầng 4 phòng ngủ ở Lạng Sơn với sơn ngoại thất hài hoà

Chủ đề trong 'Xây dựng' bởi kientrucstq, 08/09/2016.

  1. 1 người đang xem box này (Thành viên: 0, Khách: 1)
  1. kientrucstq

    kientrucstq Thành viên quen thuộc

    Tham gia ngày:
    14/07/2016
    Bài viết:
    102
    Đã được thích:
    0
    Là một doanh nhân thành đạt, lớn lên và khởi nghiệp ở Lạng Sơn, ông Khiêm sở hữu mảnh đất đắc địa gần trung tâm thành phố. Liên hệ ngay với công ty kiến trúc STQ, ông Khiêm muốn xây dựng một ngôi nhà hiện đại, tiện nghi, mang thiết kế mới lạ, ấn tượng. Nắm bắt được những yêu cầu đó, cũng như biết được xu hướng và thị hiếu thẩm mỹ ngày một nâng cao, đa dạng hiện nay, các kiến trúc sư của chúng tôi nhanh chóng bắt tay vào thiết kế để mang tới cho gia chủ không gian sống lý tưởng, hoà hảo nhất.

    Thông số bản thiết kế nhà phố 3 tầng đẹp 150m2 ở Lạng Sơn:
    1. Mẫu nhà phố: NP 202087

    2. Số tầng: 3 tầng

    3. Chủ đầu tư: Anh Khiêm

    4. Địa chỉ: Lạng Sơn

    5. Mặt tiền: 7m

    6. Chiều sâu: 18m

    7. Kích thước ô đất: 500m2

    8. Kích thước xây dựng: 150m2

    9. Kiến trúc sư thiết kế: Phạm Thành Tư

    10.Kỹ sư kết cấu: Nguyễn Văn Hưng

    11. Kỹ sư điện nước: Nguyễn Văn Cao

    12. Năm thi công: 2016

    13. Kinh phí đầu tư dự kiến: 2tỷ VNĐ

    14. Thông số công năng diện tích:

    - Tầng 1: 1 phòng khách, 1 phòng ngủ có phòng vệ sinh khép kín,1 phòng bếp ăn, 1 phòng vệ sinh chung, diện tích 150m2

    - Tầng 2: 1 phòng sinh hoạt chung, 1 phòng ngủ có phòng vệ sinh khép kín, 2 phòng ngủ,1 phòng vệ sinh chung, diện tích 150m2.

    - Tầng 3: 1 phòng thờ, 2 phòng giặt, 1 phòng vệ sinh chung, sân phơi diện tích 150m2.

    Mẫu thiết kế nhà phố 3 tầng 4 phòng ngủ ở Lạng Sơn với sơn ngoại thất hài hoà, sang trọng
    Được biết, ông Khiêm sinh năm 1979 (Kỷ Mùi) quẻ mệnh: Chấn (Mộc) thuộc Đông tứ mệnh nên chúng tôi lựa chọn hướng nhà theo hướng Nam vừa hợp phong thuỷ, vừa hợp tuổi của gia chủ. Hướng Nam (Sinh khí) thu hút tài lộc, danh tiếng, thăng quan phát tài. Hơn nữa xây nhà theo hướng Nam sẽ tránh gió Đông Bắc thổi vào khi trời lạnh, đón nhiều gió mát vào mùa nóng.

    Bản vẽ nhà phố 3 tầng đẹp 150m2 sở hữu những màu sơn ngoại thất được phối hợp hài hoà, trang nhã. Màu vàng nâu của đá granite bao bọc toàn bộ mặt tiền tầng 1 mang đến sự sang trọng, mới lạ, bảo vệ tốt cho tường nhà. Tới tầng 2 và 3 của mẫu thiết kế, người xem bị ấn tượng bởi màu trắng tinh tế, sang trọng của sơn ngoại thất cao cấp cùng với gạch ốp giả gỗ và những lớp kính dày trong suốt, vô cùng hiện đại.

    [​IMG]

    Phối cảnh 1: Bản vẽ nhà phố 3 tầng 4 phòng ngủ ở Lạng Sơn

    Chiêm ngưỡng vẻ đẹp đầy ấn tượng trong mẫu thiết kế nhà 3 tầng đẹp hiện đại.


    Ngôi nhà sở hữu những đường nét mạnh mẽ, dứt khoát, tạo những hình khối hộp với kích thước và tạo hình hết sức đa dạng. Không cần sử dụng tới những chi tiết trang trí cầu kỳ, bản vẽ vẫn đầy thu hút. Mẫu thiết kế nhà mới đẹp 3 tầng 150m2 như được lắp ghép bởi những khối hộp thông minh, tạo thành một thể thống nhất, hoàn chỉnh thể hiện sự sáng tạo, linh hoạt trong lối kiến trúc và mang lại sự mạnh mẽ, khoẻ khoắn, độc đáo, bắt mắt, được đánh giá cao về mặt thẩm mỹ.

    Những vật liệu xây dựng cao cấp luôn được chúng tôi lựa chọn để bảo vệ bền vững cho ngôi nhà của bạn cũng như để đưa ra mẫu thiết kế mới lạ, tránh nhàm chán. Bản thiết kế nhà 3 tầng 150m2 của gia đình ông Khiêm sử dụng đá granite, gạch inax màu nâu xám cùng với lớp kính trong suốt phù hợp với phong cách hiện đại, trẻ trung đồng thời giữ cho ngôi nhà bền đẹp theo thời gian.

    [​IMG]

    Phối cảnh 2: Bản vẽ nhà phố 3 tầng 4 phòng ngủ ở Lạng Sơn

    Bản thiết kế nhà phố 3 tầng hiện đại 2 tỷ đồng với mái bằng kiên cố


    Không sử dụng kiểu mái thái truyền thống, mẫu nhà 3 tầng mặt tiền đẹp 150m2 được thiết kế mái bằng kiên cố. Với kết cấu vững chắc, được tính toán kỹ lưỡng, chi tiết đảm bảo chính xác các thông số kỹ thuật. Hệ mái bằng phù hợp với nét hiện đại của mẫu nhà phố vừa có tác dụng chống nóng vào mùa hè, giữ nhiệt vào mùa đông, bảo vệ nội thất khỏi sự ảnh hưởng xấu của thời tiết.

    Ngoài ra, chúng tôi cũng linh động bố trí hệ thống đèn chiếu sáng vừa phát huy tối đa công năng vừa để trang trí, giúp ngôi nhà của bạn thêm lung linh vào ban đêm hay lam thép sơn giả gỗ che nắng che mưa, lan can kính trắng,… càng là cho mẫu thiết kế thêm sang trọng, ấn tượng.

    [​IMG]

    Phối cảnh 3: Bản vẽ nhà phố 3 tầng 4 phòng ngủ ở Lạng Sơn

    Chi tiết mặt bằng công năng mẫu nhà phố 3 tầng 4 phòng ngủ ở Lạng Sơn
    [​IMG]

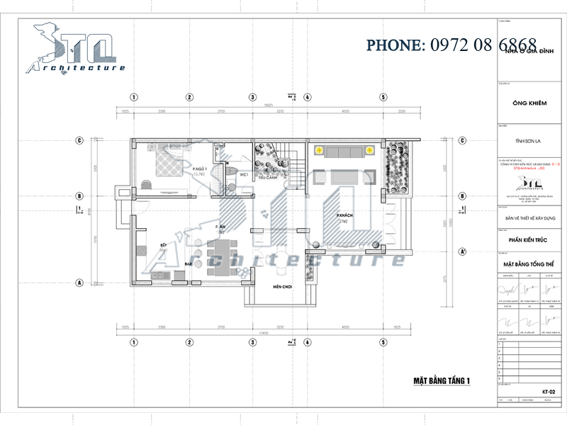
    Mặt bằng tầng 1: Mẫu thiết kế nhà 3 tầng 4 phòng ngủ ở Lạng Sơn

    Thiết kế nhà phố 3 tầng 4 phòng ngủ hiện đại với mặt bằng tầng 1


    Giáp sảnh tầng 1, chúng tôi thiêt kế bồn trồng hoa, trồng cây cảnh tạo không gian gần gũi với thiên nhiên. Ngôi nhà sở hữu phòng khách rộng 27m2 với 2 cửa sổ lớn với chiều rộng khoảng 2.5m thu hút gió và ánh sáng cho không gian nội thất. Phòng khách rộng rãi giúp gia chủ bố trí mọi đồ dùng tiện nghi, cần thiết cho sinh hoạt như bộ bàn ghế sofa, ti vi, tủ,…

    Tiến vào bên trong là tới phòng bếp 16m2, phòng ăn 17m2 với bộ bàn ăn 8 ghế có 1 cửa sổ kích thước lớn và 1 cửa ra vào tiện lợi hướng ra hiên chơi. Khu vực nấu ăn thiết kế theo kiểu chữ U dễ dàng khi sử dụng và tiết kiệm diện tích.

    Bản thiết kế nhà phố 3 tầng hiện đại rẻ đẹp với mặt bằng tầng 1 còn được thiết kế 1 phòng ngủ rộng 15.7m2 với đầy đủ đồ nội thất như: giường, ti vi, tủ quần áo, bàn làm việc và một cửa sổ lớn mở ra không gian thoáng đãng, trong lành.

    Một phòng vệ sinh chung giáp phòng ngủ đáp ứng nhu cầu sử dụng của mọi thành viên trong gia đình.

    [​IMG]

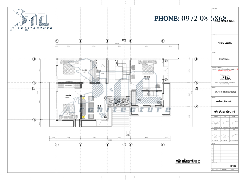
    Mặt bằng tầng 2: Mẫu thiết kế nhà 3 tầng 4 phòng ngủ ở Lạng Sơn

    Thiết kế nhà phố 3 tầng 4 phòng ngủ hiện đại với mặt bằng tầng 2


    Mặt bằng tầng 2 có 3 phòng ngủ với diện tích lần lượt là 18.5m2, 16m2, 15.5m2. Phòng ngủ 2 thích hợp làm phòng ngủ của vợ chồng gia chủ, có phòng vệ sinh khép kín tạo không gian riêng tư. Ở đây được thiết kế 2 cửa ra vào hướng ra ban công tiện cho việc chăm sóc cây cối cũng như di chuyển quan sát xung quanh.

    Các phòng ngủ đều có đầy đủ đồ nội thất hiện đại sang trọng đáp ứng nhu cầu làm việc và nghỉ ngơi của các thành viên như: giường, tủ quần áo, ti vi, máy tính, bàn làm việc, bàn trang điểm. Các cửa sổ kích thước lớn cũng được thiết kế ở vị trí thích hợp để đón gió và ánh nắng tự nhiên cho không gian.

    Không gian tầng 2 còn có 1 phòng sinh hoạt chung rộng 17m2 tạo không gian gần gũi, thân thiện cho cả gia đình quây quần, trò chuyện vào những thời gian rảnh rỗi.

    Phòng vệ sinh chung nằm giáp cầu thang vô cùng tiện lợi và cũng tiết kiệm được diện tích và chi phí cho gia chủ.

    [​IMG]

    Mặt bằng tầng 3: Mẫu thiết kế nhà 3 tầng 4 phòng ngủ ở Lạng Sơn

    Thiết kế nhà phố 3 tầng 4 phòng ngủ hiện đại với mặt bằng tầng 3


    Phòng thờ rộng 17m2 được đặt trên tầng 3 hợp phong thuỷ, mang lại sự yên tĩnh, uy nghiêm cần thiết, thể hiện sự biệt ơn, tưởng nhớ của con cháu đối với tổ tiên.

    Ngoài ra, mặt bằng tầng 3 còn được thiết kế 1 phòng giặt, 1 phòng vệ sinh và khoảng sân phơi, sân chơi tương đối rộng.

    [​IMG]

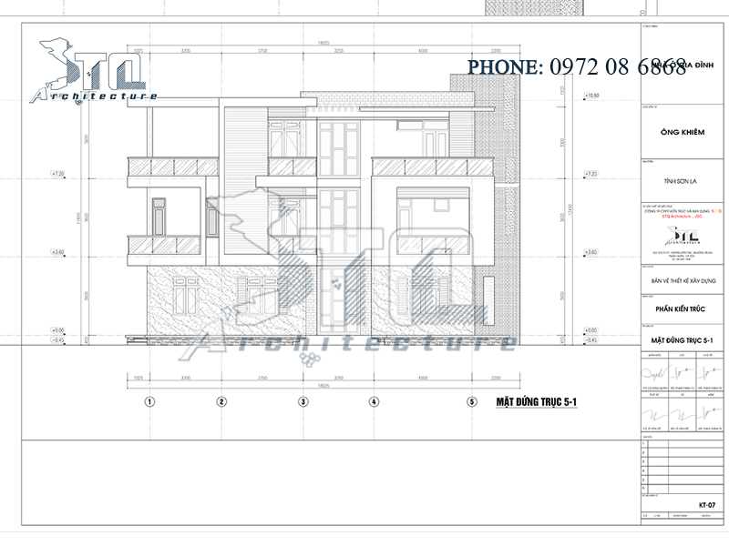
    Mặt đứng trục 5-1: Mẫu thiết kế nhà 3 tầng 4 phòng ngủ ở Lạng Sơn

    Chiều sâu của ngôi nhà là 18m, chiều cao tầng 1 và 2 là 3.6m, chiều cao tầng 3 là 3.3m. Hệ thống cửa ra vào và cửa sổ với kích thước khác nhau được tính toán và bố trí hợp lý để mang lại không gian thoáng mát, sáng sủa.

    [​IMG]

    Mặt đứng trục A-C: Mẫu thiết kế nhà 3 tầng 4 phòng ngủ ở Lạng Sơn

    Mẫu nhà phố 3 tầng hiện đại 150m2 với phong cách hiện đại đảm bảo các thông số kỹ thuật và công năng sử dụng, mang giá trị thẩm mỹ lớn. Lối kiến trúc độc đáo, sáng tạo sẽ mang tới không gian sống sang trọng, tiện nghi, sinh động và hài hoà với thiên nhiên.

    Nếu quý vị yêu thích mẫu nhà phố này hãy liên hệ ngay với chúng tôi để được tư vấn chi tiết và cung cấp mọi thông tin cần thiết.

    Hotline: 0972 08 6868

Chia sẻ trang này