1. Tuyển Mod quản lý diễn đàn. Các thành viên xem chi tiết tại đây

Mẫu thiết kế nhà phố 4 tầng diện tích 60m2 hiện đại đẹp NP141125

Chủ đề trong 'Xây dựng' bởi kientrucstq, 12/09/2016.

  1. 1 người đang xem box này (Thành viên: 0, Khách: 1)
  1. kientrucstq

    kientrucstq Thành viên quen thuộc

    Tham gia ngày:
    14/07/2016
    Bài viết:
    102
    Đã được thích:
    0
    Là một doanh nhân thành đạt sinh sống và làm việc ở Hà Nội từ lâu, ông Lương ở Bắc Từ Liêm mong muốn đổi mới không gian sống cho cả gia đình và thể hiện được phong cách riêng. Nhận được yêu cầu, các kỹ sư của chúng tôi đã kết hợp cả việc quan sát khu đất của gia chủ để đưa ra phương án thiết kế tối ưu và hợp lý, đem tới cho gia đình ông Lương một mẫu thiết kế nhà phố đẹp mắt và ưng ý nhất.

    Thông số mẫu thiết kế nhà ống 4 tầng đẹp với chi phí đầu tư 1 tỷ VNĐ
    1. Mẫu nhà phố: NP 141125

    2. Số tầng: 4 tầng

    3. Chủ đầu tư: Ông Lương

    4. Địa chỉ: Điện Biên

    5. Mặt tiền: 4m

    6. Chiều sâu: 16m

    7. Kích thước ô đất: 64m2

    8. Diện tích xây dựng: 60m2

    9. Kiến trúc sư thiết kế: Phạm Thành Tư

    10.Kỹ sư kết cấu: Nguyễn Văn Hưng

    11.Kỹ sư điện nước: Nguyễn Văn Cao

    12.Năm thi công: 2016

    13.Kinh phí đầu tư dự kiến: 1 tỷ VNĐ

    14.Thông số công năng diện tích:

    - Tầng 1: 1 phòng khách, 1 phòng bếp ăn, 1 phòng vệ sinh chung, sân trước, diện tích 60m2.

    - Tầng 2: 2 phòng ngủ có phòng vệ sinh khép kín, diện tích 60m2

    - Tầng 3: 2 phòng ngủ, 1 phòng vệ sinh chung, diện tích 60m2

    - Tầng 4: phòng thờ, phòng giặt, sân phơi, diện tích 60m2

    Bản thiết kế nhà ống 4 tầng đẹp mang phong cách hiện đại
    Toạ lạc trên khu đất hình chữ nhật kích thước 4x16m, tuy có phần hạn chế về mặt diện tích nhưng có địa thế khá tốt, ngôi nhà được thiết kế quay về hướng Bắc. Chúng tôi chọn hướng này vì như đã biết gia chủ sinh năm 1982 ( năm Nhâm Tuất), quẻ mệnh Ly Hoả, thuộc Tây Tứ Mệnh nên chọn hướng nhà là hướng Bắc (Diên Niên), thuộc Đông Tứ Trạch, sẽ đem lại nhiều may mắn, tài lộc, mọi sự ổn định, thuận lợi trong việc làm ăn của cha mẹ cũng như việc học tập của con cái, tránh hướng Tây Bắc, Đông Bắc, Tây Nam.

    Không chỉ vậy, các kiến trúc sư cũng đặc biệt lưu ý trong việc lựa chọn màu sơn ngoại thất hợp phong thuỷ và đảm bảo về mặt thẩm mỹ. Mẫu nhà phố đẹp 4 tầng hiện lên với tone màu chủ đạo là màu trắng tinh tế, sang trọng. Đây là tone màu được các chủ đầu tư lựa chọn nhiều bởi sự đơn giản, nhẹ nhàng, thanh thoát mà nó mang lại và dễ dàng kết hợp với các tone màu khác. Để tạo điểm nhấn cho ngôi nhà và tránh sự mờ nhạt, chúng tôi đã linh hoạt sử dụng đá marble màu nâu sẫm ở mặt tiền tầng 1 kết hợp ốp đá slate màu ghi sáng ở mặt tiền tầng 2 và 3 với bồn cây cảnh ngoài ban công, mang lại sự tươi mới, trẻ trung khiến cho toàn bộ mẫu thiết kế mang vẻ đẹp mạnh mẽ, ấn tượng và hài hoà với thiên nhiên.

    [​IMG]

    Phối cảnh 1: Thiết kế nhà ống đẹp 4 tầng 4x16m hiện đại 1

    Chiêm ngưỡng phối cảnh 3D mẫu nhà ống 4 tầng với kiến trúc độc đáo


    Nhìn tổng thể, hình ảnh nhà phố 4 tầng sở hữu vẻ đẹp ngoại thất mới lạ, ấn tượng. Với hạn chế về mặt diện tích mặt tiền tương đối hẹp, ở một khu phố khá đông đúc và trật trội nên chúng tôi quyết định thiết kế mẫu nhà ống cho gia đình ông Lương là phương án tối ưu, thích hợp nhất, vừa mang tới sự tiện nghi, hiện đại vừa tận dụng tối đa phần diện tích hiện có. Mỗi tầng của ngôi nhà lại mang những nét riêng khiến người xem không thể rời mắt. Mẫu nhà phố được xây dựng nên bởi sự kết hợp các hình khối dứt khoát, mạnh mẽ. Những đường nét đơn giản với kích thước khác nhau được tính toán, điều chỉnh, phối hợp hết sức ăn ý tạo nên một thể thống nhất, hài hoà. Một phần tường được thiết kế thêm những đường gờ chỉ nhỏ cùng với những ô trống hình chữ nhật đan xen , tạo sự phá cách cho lối kiến trúc, tránh sự nhàm chán, đơn điệu, và đó cũng làm nên điểm nhấn cho mẫu nhà ống này.

    Mẫu thiết kế nhà ống đẹp 4x16m sử dụng hệ mái bằng phổ biến mà phù hợp với phong cách hiện đại của ngôi nhà. Với kết cấu bê tông vững chắc, kiên cố, thiết kế mái bằng không chỉ đảm bảo công năng, bảo vệ nội thất cho ngôi nhà, có khả năng chịu nhiệt tốt cũng như chống chịu với mọi tác động xấu của thời tiết mà còn đảm bảo về mặt thẩm mỹ. Không chỉ tạo hình khối ở tường nhà mà mái bằng cũng được thiết kế tạo nên những khoảng trống thu hút được ánh sáng mặt trời khiến cho không gian thêm sáng sủa, thoáng mát mà còn giúp cây cối trên tầng thượng có điều kiện phát triển tốt hơn.

    [​IMG]

    Phối cảnh 2: Thiết kế nhà ống đẹp 4 tầng 4x16m hiện đại 2

    Mẫu nhà ống đẹp 60m2 với thiết kế ngoại thất sang trọng


    Ngôi nhà sử dụng những vật liệu xây dựng cao cấp, mới lạ làm nên sự hiện đại, tinh tế cho vẻ đẹp ngoại thất. Đá marble màu nâu sẫm được ốp ở mặt tiền tầng 1 kết hợp đá slate màu ghi sáng ở các tầng còn lại khiến cho ngôi nhà thêm sang trọng, ấn tượng, mang phong cách mạnh mẽ, trẻ trung. Những vật liệu này đã và đang được các nhà chủ đầu tư ưa thích và lựa chọn cho ngôi nhà của mình bởi công năng bảo vệ tường chống ẩm mốc, dễ lau chùi và giá trị thẩm mỹ mà nó đem lại.

    Bên cạnh đó, các kiến trúc sư cũng sử dụng chất liệu kính cho phần ngoại thất làm nên sự độc đáo, mới mẻ. Nhà ống 4 tầng 60m2 sử dụng toàn bộ hệ cửa kính cho cửa ra vào cũng như các cửa sổ. Những tấm kính dày trong suốt, có khả năng cách âm, chịu nhiệt, chịu lực khá tốt, đem lại nguồn ánh sáng và gió tự nhiên cho không gian nội thất. Không chỉ vậy, ban công tầng 2 và 3 được lắp đặt lan can kính trắng hiện đại, ấn tượng và lan can sắt sơn đen ở ban công tầng thượng đảm bảo an toàn và bền đẹp với thời gian. Ngoài ban công các tầng, chúng tôi bố trí hệ thống đèn chiếu sáng tiện dụng làm cho ngoại thất ngôi nhà đẹp lung linh vào ban đêm và tạo không gian ngắm cảnh, thư giãn cho gia chủ.

    [​IMG]

    Phối cảnh 3: Thiết kế nhà ống 4 tầng 4x16m hiện đại 3

    Chi tiết mặt bằng công năng nhà ống đẹp 4 tầng hiện đại.
    [​IMG]

    Mặt bằng tầng 1: Thiết kế nhà ống 4 tầng 60m2

    Nhà ống 4 tầng hiện đại với mặt bằng tầng 1


    Nắm bắt được địa hình hiện tại của khu đất ngay mặt đường nên chúng tôi linh hoạt thiết kế một khoảng sân trước với diện tích khoảng 6m2 tận dụng làm nơi để xe cộ của gia đình ở mặt bằng tầng 1. Tiến vào bên trong là phòng khách rộng 14.6m2, được bố trí đầy đủ đồ nội thất sang trọng gồm bộ bàn ghế sofa, ti vi, tủ. Diện tích còn lại là phòng bếp ăn 17.5m2 với bộ bàn ăn 8 ghế đặt trung tâm và bàn nấu ăn thiết kế nằm sát tường nhà vừa tiện lợi khi sử dụng vừa tiết kiệm diện tích khiến cho phòng bếp ăn thoáng, rộng hơn và phòng vệ sinh chung 2.2m2 nằm sát cầu thang. Tầng 1 cũng được thiết kế 1 cửa ra vào hướng ra phía sau để dễ dàng di chuyển, mở rộng không gian.
    [​IMG]

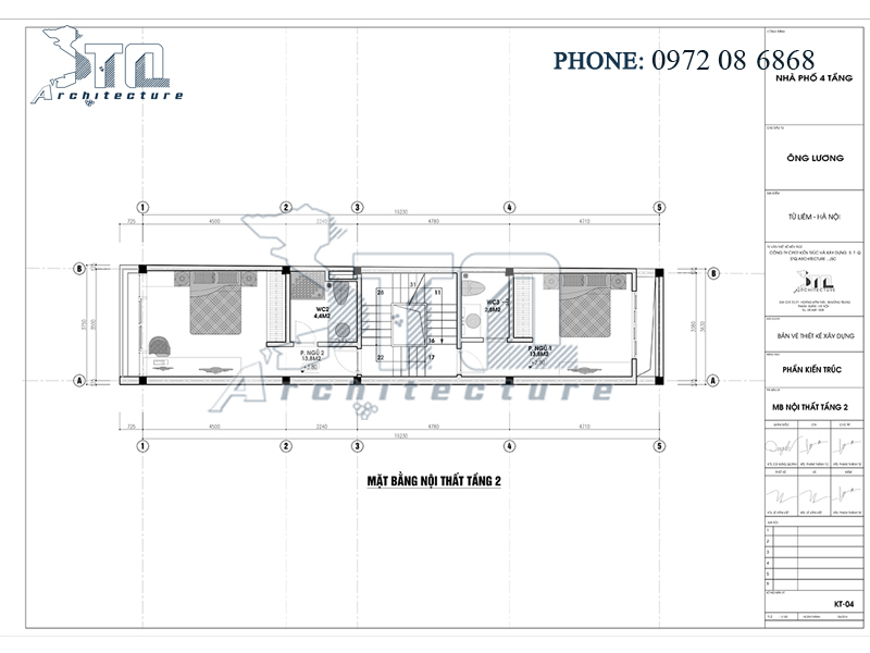
    Mặt bằng tầng 2: Thiết kế nhà ống 4 tầng 4x16m hiện đại

    Mẫu nhà ống đẹp 4 tầng hiện đại với mặt bằng tầng 2


    Mặt bằng tầng 2 gồm phòng ngủ1 và 2 diện tích 13.8m2 có phòng vệ sinh khép kín với diện tích lần lượt là 4.4m2 và 2.8m2. Các phòng ngủ đều được bố trí đầy đủ đồ nội thất: giường, tủ quần áo, ti vi, bàn làm việc. Phòng ngủ 1được thiết kế 1 cửa ra vào hướng ra ban công, tạo không gian riêng tư và thoải mái, tận hưởng không khí tự nhiên trong lành, thoáng mát. Phòng ngủ 2 và 4 có 1 cửa sổ lớn hướng ra phía sau của ngôi nhà.

    [​IMG]

    Mặt bằng tầng 3: Thiết kế nhà ống 4 tầng 4x16m hiện đại

    Mẫu thiết kế nhà ống đẹp 4 tầng với mặt bằng tầng 3


    Mặt bằng tầng 3 gồm 2 phòng ngủ 3 và 4 với diện tích lần lượt là 9.4m2 và 16.6m2 cũng được bố trí: giường, tủ quần áo, ti vi, máy tính và bàn làm việc. Cũng giống như phòng ngủ 1, phòng ngủ 3 có cửa mở ra ban công để tiện lợi cho việc quan sát xung quanh cũng như chăm sóc cây cối. Khu vực tầng 3 sử dụng 1 phòng vệ sinh chung 4.4m2 được thiết kế giáp cầu thang nhằm tiết kiệm chi phí cho gia chủ đồng thời tiện lợi khi sử dụng.

    [​IMG]

    Mặt bằng tầng 4: Thiết kế nhà ống 4 tầng 4x16m hiện đại

    Bản thiết kế nhà ống 4 tầng 60m2 với mặt bằng tầng 4


    Mặt bằng tầng 4 gồm phòng thờ diện tích 10.4m2, sân phơi, sân chơi rộng 10.7m2, phòng giặt 4.4m2. Phòng thờ được thiết kế trên tầng thượng tạo không gian riêng, thiêng liêng, nghiêm trang, nơi thể hiện lòng biết ơn, tưởng nhớ của con cháu với tổ tiên. Phòng thờ được bố trí cửa sổ và cửa ra vào hướng ra khu vực tiểu cảnh.

    [​IMG]Mặt bằng mái: Thiết kế nhà ống 4 tầng hiện đại 4x16m hiện đại

    Bản thiết kế nhà ống 4 tầng 60m2 với mặt bằng mái


    Với sự tính toán chi tiết, hợp lý về kích thước, kết cấu, hệ mái của ngôi nhà ống 4 tầng hết sức kiên cố, vững chắc, đảm bảo công năng sử dụng và có chỗ để téc nước sinh hoạt. Hệ mái sử dụng kết hợp mái kính lấy sáng, mái ngói và mái nan bê tông tạo nên sự độc đáo.

    Ngoài ra chúng tôi cung cấp một số bản vẽ mặt đứng và mặt cắt của ngôi nhà phố 4 tầng đẹp với đầy đủ các thông số kỹ thuật để nhà đầu tư và bên thi công công trình tiện theo dõi.

    [​IMG]

    Mặt đứng trục A-B: Thiết kế nhà ống 4 tầng hiện đại

    [​IMG]

    Mặt đứng trục B-A: Thiết kế nhà ống 4 tầng hiện đại

    Mẫu nhà ống 4 tầng với mặt tiền 3.6m, chiều cao tầng 1 là 2.9m, chiều cao tầng 2 và 3 là 3.4m, chiều cao tầng 4 là 3.3m.

    [​IMG]

    Mặt đứng trục 1-5: Thiết kế nhà phố 4 tầng hiện đại

    [​IMG]

    Mặt đứng trục 5-1: Thiết kế nhà phố 4 tầng hiện đại

    Chiều sâu của mẫu thiết kế là 16m, mặt bên của ngôi nhà được thiết kế những khoảng trống sắp xếp xen kẽ với chiều rộng 250mm và chiều dài được thay đổi linh hoạt. Một bên tường tầng 2 và 3 được sử dụng gạch bông gió, tầng 4 được thiết kế ***g sắt an toàn đảm bảo về mặt an ninh. Mái ngói với chiều cao 1.6m và chiều dài 3.9m đua ra phía sau giúp che nắng che mưa, bảo vệ nội thất.

    [​IMG]

    Mặt cắt 1-1: Thiết kế nhà ống 4 tầng hiện đại

    [​IMG]

    Mặt cắt 2-2: Mẫu thiết kế nhà ống 4 tầng hiện đại

    Với cách bố trí, sắp đặt, tính toán diện tích chi tiết các phòng, hệ cửa ra vào, cửa sổ hay cầu thang, ngôi nhà mang lại sự tiện lợi, hiện đại mà tận dụng được tối đa diện tích hiện có của gia chủ.

    Nhà ống đẹp 4 tầng 60m2 mà chúng tôi thiết kế cho gia đình ông Lương đảm bảo hoàn thiện về các thông số kỹ thuật và công năng sử dụng. Ngôi nhà với lối kiến trúc độc đáo, phá cách, mang điểm nhấn riên, được đánh giá cao về mặt thẩm mỹ. đem tới một không gian sống vô cùng hiện đại, sang trọng, đáp ứng mọi yêu cầu và sở thích của gia chủ.

    Nếu quý vị yêu thích mẫu thiết kế nhà ống hiện đại này hãy liên hệ với chúng tôi để được tư vấn chi tiết hơn.

    Hotline: 0972 08 6868

Chia sẻ trang này