1. Tuyển Mod quản lý diễn đàn. Các thành viên xem chi tiết tại đây

Mẫu thiết kế nhà vườn 1 tầng hình chữ U mặt tiền 20m

Chủ đề trong 'Xây dựng' bởi kientrucstq, 21/08/2016.

  1. 1 người đang xem box này (Thành viên: 0, Khách: 1)
  1. kientrucstq

    kientrucstq Thành viên quen thuộc

    Tham gia ngày:
    14/07/2016
    Bài viết:
    102
    Đã được thích:
    0
    Lập nghiệp và xây dựng gia đình trên mảnh đất Hoà Bình, anh Hưng sở hữu ô đất đắc địa với diện tích tương đối rộng rãi khoảng 450m2. Luôn mong muốn có một ngôi nhà đơn giản, không cần quá cầu kỳ, đồ sộ, phù hợp với các thành viên trong gia đình cũng như hoà hợp với không gian thiên nhiên, khung cảnh yên bình của miền quê. Các KTS của công ty kiến trúc STQ đã lên phối cảnh và mặt bằng chi tiết đưa ra mẫu nhà cấp 4 hình chữ U mái thái đẹp và trở thành một trong những mẫu nhà được ưa chuộng hiện nay.

    Thông số mẫu thiết kế nhà cấp 4 hình chữ U mái thái đẹp 350m2 ở Hoà Bình
    1. Mẫu biệt thự: BT102048

    2. Số tầng: 1 tầng

    3. Chủ đầu tư: Ông Hưng

    4. Địa chỉ: Hoà Bình

    5. Mặt tiền: 20m

    6. Chiều sâu: 20m

    7. Kích thước ô đất: 450m2

    8. Kích thước xây dựng: 350m2

    9. Kiến trúc sư thiết kế: Nguyễn Thị Định

    10.Kỹ sư kết cấu: Nguyễn Văn Hưng

    11.Kỹ sư điện nước: Nguyễn Văn Cao

    12.Năm thi công: 2016

    13.Kinh phí đầu tư dự kiến: 1.7 tỷ VNĐ

    14.Thông số công năng diện tích:

    - Tầng 1: 1 phòng thờ, 1 phòng khách, 4 phòng ngủ, phòng ăn, bếp, 2 phòng vệ sinh chung, diện tích 350m2.

    Chiêm ngưỡng phối cảnh lung linh của thiết kế nhà cấp 4 hình chữ U
    Trao đổi với chúng tôi, anh Hưng là chủ đầu tư sinh năm 1976 (Bính Thìn) quẻ mệnh Càn Kim thuộc Tây Tứ Mệnh nên các KTS quyết định lựa chọn hướng chính của ngôi nhà là hướng Tây Bắc (Phục Vị). Đây là một hướng rất tốt, mang tới tài lộc, bình an, nhiều may mắn trong công việc, hạnh phúc gia đình. Đồng thời, hướng Tây Bắc sẽ giúp ngôi nhà tránh gió lùa vào mùa đông, thu gió mát vào mùa hè, phù hợp với địa lý và khí hậu vùng miền.

    Ngôi biệt thự vườn 1 tầng sở hữu màu sơn ngoại thất là màu trắng thanh thoát, nhẹ nhàng, tinh tế. Dòng sơn ngoại thất Dulux mà chúng tôi sử dụng có độ phủ bóng cao, chống thấm nước, rong rêu, luôn mang tới sự hài lòng về chất lượng và giá cả phải chăng. Ngoài ra trên thị trường có rất nhiều dòng sơn khác nhau, đa dạng về màu sắc và mẫu mã, giá thành để khách hàng có thể thoả thích lựa chọn như: Jymec, Mykolor,… Để tránh sự mờ nhạt, nhàm chán, các KTS sử dụng phối hợp màu xám của đá rối, tường sơn giả gỗ làm cho ngoại thất ngôi nhà thêm sinh động, trẻ trung.

    [​IMG]

    Phối cảnh 1: Nhà cấp 4 hình chữ U mái thái đẹp ở Hoà Bình

    Hình ảnh biệt thự vườn 1 tầng ấn tượng với mái thái chữ U đăng đối


    Diện tích mái rộng 350m2 được thiết kế theo hình chữ U đăng đối, bề thế. Độ dốc mái được tính toán khoa học, kết cấu kiên cố, vững chãi, nhằm dễ thoát nước vào mùa mưa, chống nóng vào mùa hè, bảo vệ nội thất. Đặc biệt, mái ngói màu đỏ mang nét uy nghi, cổ xưa mà vẫn rất ấn tượng, thu hút mọi ánh nhìn.
    Nhìn bao quát, mẫu biệt thự 1 tầng là sự kết hợp tinh tế của truyền thống và hiện đại. Dưới hệ mái thái truyền thống, chúng tôi sử dụng cho ngôi nhà những vật liệu xây dựng cao cấp cũng giống như ở những mẫu nhà phố hiện nay. Đá rối màu xám ốp chân tường vừa bảo vệ tốt cho tường nhà, dễ lau chùi, chống thấm nước và mang giá trị thẩm mỹ lớn. Hệ thống console thép sơn chống rỉ được thiết kế ở các góc nhằm nâng đỡ hệ mái và cũng dùng để trang trí. Phần tường áp mái bao quanh tổng thể mẫu kiến trúc được kẻ vân, sơn giả gỗ, mang lạ nét cổ kính, trầm tư.

    Toàn bộ cửa ra vào cũng như cửa sổ được sử dụng là cửa kính gỗ. Loại cửa này được các chủ đầu tư yêu thích, lựa chọn cho ngôi nhà của mình bởi chất lượng cũng như kiểu dáng đẹp, hiện đại của nó.

    Bao quanh toàn bộ mẫu nhà, chúng tôi thiết kế bồn trồng hoa, cây cảnh tạo không gian gần gũi với thiên nhiên, trong lành, tươi mát.

    [​IMG]

    Phối cảnh 2: Nhà cấp 4 hình chữ U mái thái đẹp ở Hoà Bình

    Chi tiết mặt bằng công năng mẫu nhà cấp 4 hình chữ U bề thế
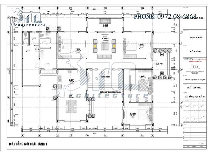
    [​IMG]

    Mặt bằng nội thất tầng 1 của mẫu nhà cấp 4 chữ U gồm phòng khách, phòng thờ, 4 phòng ngủ và 2 phòng vệ sinh chung. Bước qua sảnh chính là tiến tới không gian phòng khách rộng 34.4m2 với nội thất sang trọng, được lấy ánh sáng và gió tự nhiên chủ yếu từ cửa chính kích thước lớn 2.5m. Ngay bên trong là phòng thờ diện tích 10m2 thể hiện sự thành kính, lòng biết ơn của con cháu, đảm bảo sự uy nghiêm, yên tĩnh cần thiết.

    Phòng ngủ 1 và 2 với diện tích 18m2 nằm cân xứng 2 bên giáp phòng khách, có cửa sổ rộng 2.4m hướng ra phía sau nhà. Phòng ngủ 3 và 4 có diện tích lần lượt là 19.5m2 và 17m2. Phòng ngủ 4 có cửa sổ rộng 2.7m hướng ra mặt tiền. Các phòng ngủ đều được bố trí đầy đủ đồ nội thất tiện nghi như: giường, ti vi, tủ quần áo, bàn làm việc, máy tính cá nhân.

    Phòng bếp 17m2 với dãy bàn nấu ăn thiết kế kiểu chữ L nằm sát tường khiến không gian rộng rãi, thông thoáng. Phòng ăn 23m2 sở hữu 2 cửa lớn rộng 2.7m, hướng ra mặt tiền, và mở lối đi ra tiền sảnh.

    Hai phòng vệ sinh chung, mỗi phòng 10m2 phụ vụ nhu cầu sinh hoạt của các thành viên trong gia đình.

    [​IMG]

    Mái thái chữ U đăng đối với diện tích 350m2 bề thế, kiên cố. Với kết cấu được tính toán hợp lý vô cùng vững chắc, độ dốc vừa phải dễ thoát nước vào mùa mưa đồng thời có khả năng chống nóng rất tốt.

    [​IMG]

    [​IMG]

    Chiều cao mái của mẫu biệt thự là 2.5m, chiều cao tầng 1 là 3.9m

    [​IMG]

    [​IMG]

    Mặt tiền mẫu thiết kế là 16m, chiều sâu 21m.

    Mẫu nhà cấp 4 chữ U đăng đối, mái thái đẹp đảm bảo công năng sử dụng, các thông số kỹ thuật và được đánh giá cao về mặt thẩm mỹ. Với chi phí đầu tư khoảng 1.7 tỷ VNĐ, gia đình anh Hưng sở hữu không gian sống tiện nghi 350m2 4 phòng ngủ, hài hoà với thiên nhiên, giúp các thành viên có những khoảng thời gian hạnh phúc, vui vẻ, thư thái. Nếu yêu thích mẫu nhà cấp 4 mang thiết kế đơn giản như trên hay nhà phố hiện đại, quý vị hãy liên hệ ngay tới công ty kiến trúc STQ để có được nhiều bản vẽ nhà ưng ý nhất.

    CÔNG TY CỔ PHẦN XÂY DỰNG VÀ KIẾN TRÚC STQ

    Địa chỉ: 51/71 HOÀNG VĂN THÁI - THANH XUÂN - HÀ NỘI

    Hotline: 097 208 6868 - kientrucstq@gmail.com

Chia sẻ trang này