1. Tuyển Mod quản lý diễn đàn. Các thành viên xem chi tiết tại đây

Ngắm nhìn mẫu nhà phố 3 tầng 4 phòng ngủ 136m2 với màu sơn ngoại thất tinh tế

Chủ đề trong 'Xây dựng' bởi kientrucstq, 30/08/2016.

  1. 0 người đang xem box này (Thành viên: 0, Khách: 0)
  1. kientrucstq

    kientrucstq Thành viên quen thuộc

    Tham gia ngày:
    14/07/2016
    Bài viết:
    102
    Đã được thích:
    0
    Băn khoăn không biết nên lựa chọn mẫu thiết kế theo phong cách nào cho phù hợp với địa thế khu đất hiện tại đồng thời mang tới không gian sống hoàn toàn mới cho cả gia đình và thể hiện được đẳng cấp, phong cách riêng, anh Tiến ở Lào Cai liên hệ ngay tới công ty kiến trúc STQ để được tư vấn. Nhận được yêu cầu từ phía khách hàng, các KTS lên phương án thiết kế và cho ra đời mẫu biệt thự tân cổ 3 tầng 136m2 4 phòng ngủ với chi phí khoảng 2 tỷ VNĐ với hình ảnh đầy ấn tượng, thu hút, mang những điểm khác biệt so với các mẫu thiết kế nhà phố khác.

    Thông số bản thiết kế nhà phố 3 tầng tân cổ 2 mặt tiền 136m2 ở Lào Cai:
    1. Mẫu nhà phố: NP125267

    2. Số tầng: 3 tầng

    3. Chủ đầu tư: Anh Tiến

    4. Địa chỉ: Lào Cai

    5. Mặt tiền: 8m

    6. Chiều sâu: 17m

    7. Kích thước ô đất: 150m2

    8. Kích thước xây dựng: 136m2

    9. Kiến trúc sư thiết kế: Đỗ Thị Hương

    10.Kỹ sư kết cấu: Nguyễn Văn Hưng

    11.Kỹ sư điện nước: Nguyễn Văn Cao

    12.Năm thi công: 2016

    13.Kinh phí đầu tư dự kiến: 2 tỷ VNĐ

    14.Thông số công năng diện tích:

    - Tầng 1: phòng khách, phòng bếp, phòng ăn - Diện tích 136m2

    - Tầng 2: 3 phòng ngủ có phòng vệ sinh khép kín - Diện tích 136m2

    - Tầng 3: 1 phòng thờ, phòng ngủ khách có phòng vệ sinh khép kín, phòng giặt, sân phơi - Diện tích 136m2.

    Ngắm nhìn mẫu nhà phố 3 tầng 4 phòng ngủ 136m2 với màu sơn ngoại thất tinh tế.
    Được biết anh Tiến sinh năm 1978 (Mậu Ngọ) thuộc Đông Tứ Mệnh nên lựa chọn xây nhà theo hướng Bắc (Sinh Khí) vừa hợp tuổi gia chủ vừa hợp địa thế mảnh đất hiện tại. Đặc biệt đây là một hướng rất tốt giúp mang lại tài lộc, làm ăn thuận lợi, thăng tiến trong sự nghiệp.

    Mẫu nhà phố cổ điển này sở hữu màu sơn chủ đạo là màu trắng. Không phải ngẫu nhiên mà chúng tôi lựa chọn màu sơn này. Mà đó là màu hợp phong thuỷ, hợp tuổi của gia chủ. Người mệnh hoả nên lựa chọn những tone màu như xanh, đỏ, vàng, tránh màu đen. Để tránh sự mờ nhạt cho mẫu thiết kế, các KTS sử dụng màu vàng của đá granite ở mặt tiền tầng 1 tạo điểm nhấn, đồng thời bảo vệ tốt nhất cho tường nhà khỏi tác động của thời tiết, bền đẹp theo thời gian, màu nâu sang trọng của cửa gỗ và màu xanh bắt mắt phần mái basat. Tất cả phối hợp hài hoà với nhau khiến ngôi nhà thêm ấn tượng, thu hút.

    Chúng tôi tận dụng 1 phần diện tích của ô đất hiện có làm gara để ô tô cũng như các phương tiện đi lại khác của gia đình đảm bảo về an ninh và hợp lý bởi nhà ở mặt phố.

    [​IMG]

    Phối cảnh 1: Mẫu nhà phố 3 tầng 2 mặt tiền 136m2 ở Lào Cai

    Ấn tượng với phong cách cổ điển sang trọng của bản vẽ nhà phố 3 tầng 136m2


    Mẫu nhà phố 3 tầng cổ điển đẹp không cần sử dụng tới những chi tiết thiết kế cầu kỳ mà vẫn uy nghiêm, sang trọng với lối kiến trúc kiểu Pháp cách tân. Ngôi nhà sở hữu hình khối đơn giản, hệ cột trụ khoẻ khoắn, cân xứng. Đồng thời những hoạ tiết mặt tiền phần ô gió hay console tạo điểm nhấn cho mẫu thiết kế. Hay những đường nét uốn lượn ở lan can thép sơn xanh làm cho mặt tiền ngôi nhà phố 3 tầng thêm mềm mại, tinh tế hơn.

    Toàn bộ hệ thống cửa ra vào và cửa sổ được sử dụng bằng cửa kính gỗ. Đây là loại cửa được các nhà đầu tư tin dùng bởi chất lượng của nó, bảo vệ tốt không gian nội thất cũng như thể hiện sự hiện đại, đẳng cấp.

    Mỗi vị khách ghé qua đều không khỏi ấn tượng bởi mái Massanrd theo kiểu kiến trúc của Pháp. Hệ mái sử dụng ngói lợp màu xanh xung quanh mặt tiền trang trí tạo hình vòm với đường cong mềm mại cùng với đường gờ chỉ uyển chuyển làm cho mẫu thiết kế thêm thanh thoát, đep mắt.

    [​IMG]

    Phối cảnh 2: Mẫu nhà phố 3 tầng 2 mặt tiền 136m2 ở Lào Cai

    Chi tiết mặt bằng công năng mẫu nhà phố 3 tầng 8x17m 4 phòng ngủ ở Lào Cai
    [​IMG]

    Mặt bằng tầng 1: Mẫu nhà phố 3 tầng 2 mặt tiền 136m2 ở Lào Cai

    Mẫu nhà phố 3 tầng mặt tiền 8m này sở hữu phòng khách khá rộng có đại sảnh làm không gian nội thất thêm thoáng đãng, mát mẻ. Tiến sâu vào bên trong là phòng bếp ăn và bar. Khu vực nấu ăn thiết kế kiểu chữ L gọn gàng, tiện lợi mà tiết kiệm diện tích. Bar sang trọng, đẳng cấp. Ngay bên cạnh là bàn ăn lớn cho đại gia đình. Phòng ăn có cửa sổ lớn hướng ra khu vực tiểu cảnh phía sau nhà, tận hưởng không gian thiên nhiên trong lành, tươi mát.

    [​IMG]

    Mặt bằng tầng 2: Mẫu nhà phố 3 tầng 2 mặt tiền 136m2 ở Lào Cai

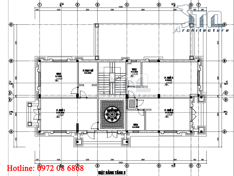
    Mặt bằng tầng 2 của mẫu nhà phố 3 tầng 8x17m có 3 phòng ngủ khép kín, trong đó phòng ngủ của vợ chồng gia chủ có diện tích lớn 40m2, 2 phòng còn lại khoảng 28m2 dành cho 2 con. Các phòng ngủ đều được bố trí đầy đủ đồ nội thất tiện nghi, phù hợp với sở thích của từng thành viên như: giường, ti vi, tủ quần áo, bàn làm việc, bàn trang điểm, máy tính cá nhân,…

    [​IMG]

    Mặt bằng tầng 3: Mẫu nhà phố 3 tầng 2 mặt tiền 136m2 ở Lào Cai

    Với 136m2 diện tích sàn, tầng 3 của bản vẽ nhà phố cổ điển gồm phòng thờ rộng 18m2 đảm bảo hợp phong thuỷ và sự yên tĩnh uy nghiêm cần thiết nhưng không quá lạnh lẽo. Một phòng ngủ dành cho khách rộng 28m2 cũng có phòng vệ sinh khép kín, tạo không gian riêng và tiện lợi. Diện tích còn lại là phòng giặt, ủi, sấy đồ, có sân phơi rộng. Khoảng sân thượng phía trước là nơi gia chủ có thể mang đến không gian xanh cho ngôi nhà của mình, trồng các loại cây yêu thích và đặc biệt có thời gian thư giãn, ngắm nhìn toàn cảnh thành phố từ trên cao.

    [​IMG]

    Mặt đứng chính: Mẫu nhà phố 3 tầng 2 mặt tiền 136m2 ở Lào Cai

    Chiều rộng của mẫu thiết kế là 8m, chiều sâu 17m, chiều cao tầng 1 là 3.6m, chiều cao tầng 2, 3 là 3.3m, chiều cao mái là 2.8m.

    Trên đây chúng tôi giới thiệu tới quý vị mẫu nhà phố 3 tầng 8x17m với 4 phòng ngủ hiện đại, tiện nghi, đảm bảo các thông số kỹ thuật, công năng sử dụng và được đánh giá cao bởi lối kiến trúc cách tân của Pháp với mái Massanrd cổ điển. Nếu quý vị yêu thích mẫu nhà trên hay mẫu nhà phố hiện đại nhất hiện nay hãy liên hệ ngay tới công ty kiến trúc STQ để được tư vấn và thiết kế.

    CÔNG TY CỔ PHẦN XÂY DỰNG VÀ KIẾN TRÚC STQ

    Địa chỉ: 51/71 HOÀNG VĂN THÁI - THANH XUÂN - HÀ NỘI

    Hotline: 097 208 6868 - kientrucstq@gmail.com

Chia sẻ trang này