1. Tuyển Mod quản lý diễn đàn. Các thành viên xem chi tiết tại đây

Thông số bản thiết kế nhà phố 3 tầng hiện đại 80m2 ở Lào Cai NP142028

Chủ đề trong 'Xây dựng' bởi kientrucstq, 08/09/2016.

  1. 1 người đang xem box này (Thành viên: 0, Khách: 1)
  1. kientrucstq

    kientrucstq Thành viên quen thuộc

    Tham gia ngày:
    14/07/2016
    Bài viết:
    102
    Đã được thích:
    0
    Yêu thích phong cách trẻ trung, hiện đại và am hiểu một chút về kiến trúc, anh Trung ở Lào Cai đang muốn lựa chọn một mẫu thiết kế độc đáo, mới lạ và đã liên hệ ngay tới công ty kiến trúc STQ. Các KTS nhiệt huyết, giàu kinh nghiệm nhanh chóng lên phương án thiết kế và cho ra mắt mẫu nhà phố 3 tầng với lối kiến trúc phá cách, đầy ấn tượng, lôi cuốn mà quý vị có thể tham khảo ngay dưới đây.

    Thông số bản thiết kế nhà phố 3 tầng hiện đại 80m2 ở Lào Cai:
    1. Mẫu nhà phố: NP142028

    2. Số tầng: 3 tầng

    3. Chủ đầu tư: Anh Trung

    4. Địa chỉ: Lào Cai

    5. Mặt tiền: 5m

    6. Chiều sâu: 15.5m

    7. Kích thước ô đất: 100m2

    8. Kích thước xây dựng: 80m2

    9. Kiến trúc sư thiết kế: Đỗ Thị Hương

    10.Kỹ sư kết cấu: Nguyễn Văn Hưng

    11.Kỹ sư điện nước: Nguyễn Văn Cao

    12.Năm thi công: 2016

    13.Kinh phí đầu tư dự kiến: 1.1 tỷ VNĐ

    14.Thông số công năng diện tích:

    - Tầng 1: phòng khách, phòng bếp ăn, 1 phòng vệ sinh chung - Diện tích 80m2

    - Tầng 2: 2 phòng ngủ có phòng vệ sinh khép kín- Diện tích 80m2

    - Tầng 3: phòng thờ, sân phơi, sân chơi - Diện tích 80m2.

    Chiêm ngưỡng phối cảnh đẹp mắt đầy thu hút của mẫu nhà phố 3 tầng 5x15.5m ở Lào Cai
    Ngôi nhà phố 3 tầng mặt tiền 5m được xây dựng theo hướng Tây Bắc (Phục Vị). Đây là một trong những hướng nhà rất tốt, hợp phong thuỷ, hợp tuổi của gia chủ. Anh Trung sinh năm 1985 (Ất Sửu) thuộc cung mệnh Càn Kim thuộc Tây Tứ mệnh nên chọn nhà theo hướng Tây Bắc sẽ đem lại nhiều may mắn, gặp thiên thời được che chở, thuận lợi trong công việc.

    Màu sắc của mẫu thiết kế chúng tôi cũng lựa chọn sao cho hợp phong thuỷ và mang giá trị thẩm mỹ cao. Với tuổi của gia chủ, màu sơn ngoại thất màu bạc, màu trắng là lựa chọn hoàn hảo nhất. Màu sơn trắng đóng vai trò chủ đạo trong mẫu thiết kế, tạo sự trẻ trung, thanh thoát. Kết hợp với đó là màu sơn bạc sang trọng, lịch lãm, tránh sự một màu, nhàm chán. Dòng sơn được sử dụng là sơn Dulex có độ phủ bóng cao, chống thấm nước, rong rêu, giúp ngôi nhà của bạn luôn tươi mới, bền màu theo thời gian. Ngoài ta trên thị trường còn có rất nhiều dòng sơn chất lượng, giá cả phải chăng cho khách hàng lựa chọn.

    [​IMG]

    Phối cảnh: Nhà phố 3 tầng 80m2 2 phòng ngủ ở Lào Cai

    Ấn tượng với phong cách thiết kế phá cách, đầy cuốn hút của mẫu nhà phố 3 tầng 80m2 ở Lào Cai
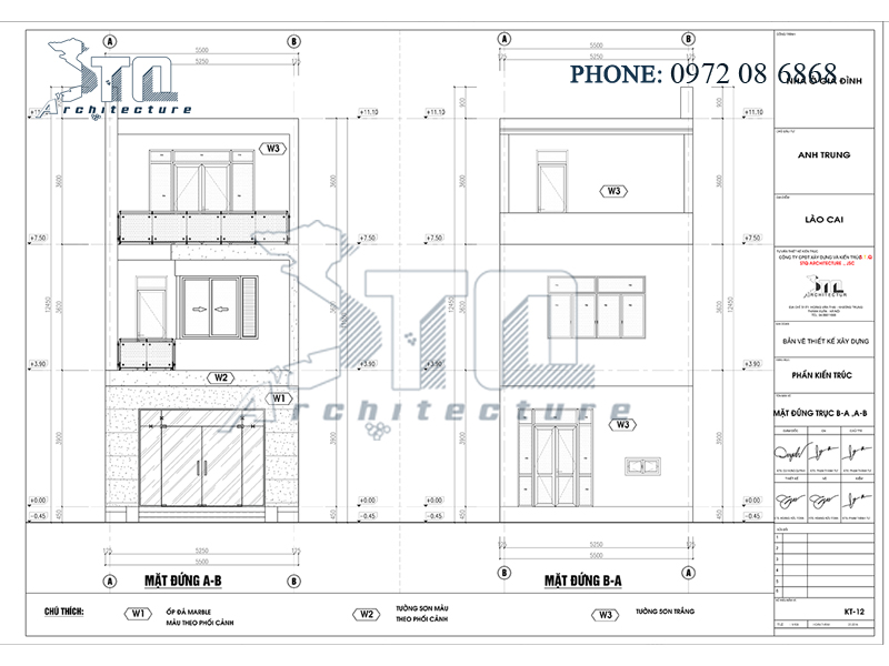
    Nhìn tổng thể, ngôi nhà phố hiện đại này sở hữu những đường nét dứt khoát hình khối vuông vức, gọn gàng tạo cảm giác mạnh mẽ, khoẻ khoắn. Phần hiên tầng 2 và 3 đua ra phía trước tạo điểm nhấn đồng thời có tác dụng che nắng, che mưa, hạn chế tối đa ảnh hưởng tới nội thất.

    Hệ thống cửa ra vào, cửa sổ và lan can của ngôi nhà được sử dụng toàn bộ bằng kính cường lực, có khả năng cách âm, chịu nhiệt rất tốt, dễ lau chùi, bền đẹp theo thời gian. Đây là một trong những vật liệu cao cấp được đánh giá cao về chất lượng cũng như giá trị thẩm mỹ, phù hợp với phong cách hiện đại của mẫu thiết kế.

    Các KTS sử dụng hệ mái bằng với kết cấu bê tông kiên cố, vững chắc thích hợp với khí hậu phía Bắc, bảo vệ không gian nội thất khỏi tác động xấu của thời tiết và đảm bảo mát mẻ vào mùa hè, ấm áp vào mùa đông. Mái đổ bê tông kết hợp với một phần lam che được tạo nên bởi những thanh thép khoẻ khoắn sơn đen chống rỉ, tạo khoảng trống thu hút ánh sáng giúp khu vực tiểu cảnh trên tầng thượng phát triển tươi tốt, tạo sự liên kết, giao hoà với thiên nhiên.

    Chi tiết mặt bằng công năng mẫu nhà phố 3 tầng mặt tiền 5m 2 phòng ngủ ở Lào Cai
    [​IMG]

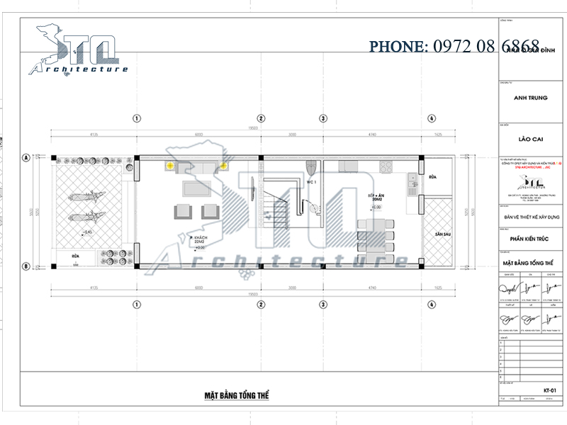
    Ngôi nhà phố hiện đại 3 tầng có một khoảng sân trước nhà rộng 20m2 là nơi để xe cộ cũng như không gian vui chơi cho trẻ và bồn hoa thiết kế dọc 2 bên tạo không khí trong lành, tươi mát

    [​IMG]

    Mẫu thiết kế sở hữu phòng khách rộng rãi diện tích 22m2 đầy đủ đồ nội thất tiện nghi, lấy gió và ánh sáng tự nhiên chủ yếu từ cửa chính mặt tiền. Tiến vào bên trong là không gian phòng bếp ăn rộng 20m2 với dãy bàn ăn kê sát tường và bộ bàn ăn 8 ghế đặt ở trung tâm.

    Phòng vệ sinh chung bố trí dưới gầm cầu thang tiết kiệm tối đa diện tích mặt bằng tầng 1.

    [​IMG]

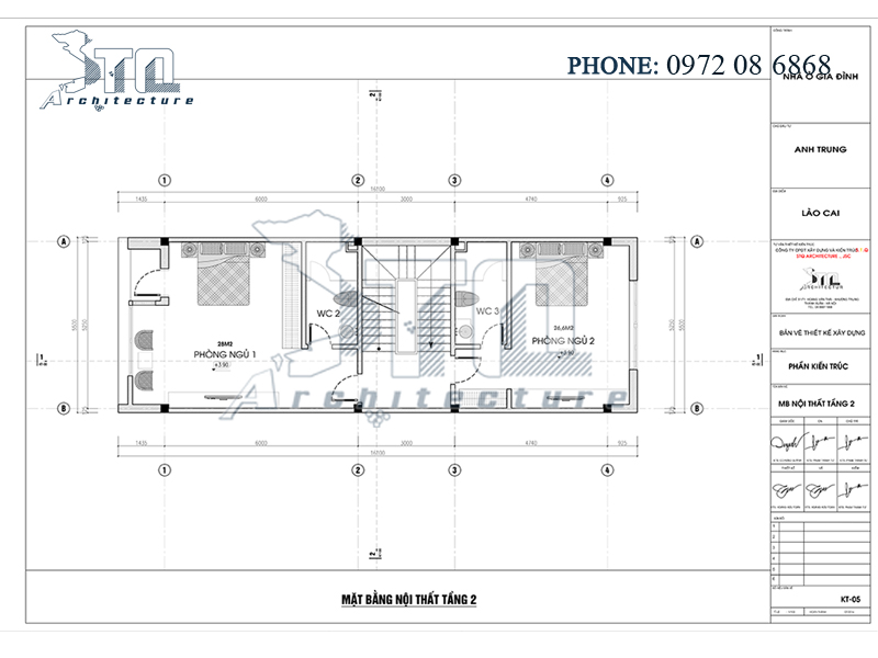
    Mặt bằng nội thất tầng 2 gồm 2 phòng ngủ 1 và 2 có phòng vệ sinh khép kín với diện tích lần lượt là 28m2 và 26.6m2 được bố trí đầy đủ đồ dùng phục vụ nhu cầu làm việc và nghỉ ngơi của các thành viên như: giường, tủ quần áo, bàn làm việc, ti vi, máy tính. Phòng ngủ 1 có cửa hướng ra ban công, giúp vợ chồng gia chủ có không gian riêng tư, thư giãn, tận hưởng không khí ngoài thiên nhiên.

    [​IMG]

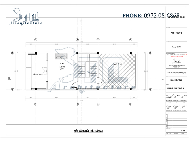
    Tầng 3 là khu vực phòng thờ rộng 15m2 đảm bảo sự yên tĩnh, uy nghiêm cần thiết, thể hiện lòng thành kính, biết ơn của con cháu với ông bà tổ tiên. Phía sau là nơi giặt, phơi quần áo diện tích 25m2. Ban công tầng 3 7m2 có là nơi trồng cây cảnh, tạo không gian gần gũi với thiên nhiên.

    [​IMG]

    Ngoài kết cấu mái đổ bê tông kiên cố, mặt bằng mái còn được thiết kế 2 lam che, tạo điểm độc đáo, khác biệt

    [​IMG]

    Chiều rộng mẫu thiết kế khoảng 5m, chiều sâu 17m, chiều cao tầng 1 là 3.9m, chiều cao tầng 2 và 3 là 3.6m. Hệ thống cửa sổ và cửa ra vào được bố trí hợp lý đảm bảo lượng ánh sáng đủ cung cấp cho không gian nội thất.

    Mẫu nhà phố 3 tầng mặt tiền 5m 2 phòng ngủ do các KTS của công ty kiến trúc STQ thực hiện đảm bảo công năng sử dụng và các thông số kỹ thuật, không những vậy còn được đánh giá cao về mặt thẩm mỹ. Với chi phí đầu tư chỉ khoảng 1.3 tỷ VNĐ, anh Trung sở hữu cho mình ngôi nhà với lối kiến trúc mới mẻ, độc đáo, ấn tượng và hài hoà với thiên nhiên hứa hẹn mang tới không gian sống hiện đại, lý tưởng cho cả gia đình.

    CÔNG TY CỔ PHẦN XÂY DỰNG VÀ KIẾN TRÚC STQ

    Địa chỉ: 51/71 HOÀNG VĂN THÁI - THANH XUÂN - HÀ NỘI

    Hotline: 097 208 6868 - kientrucstq@gmail.com

Chia sẻ trang này