1. Tuyển Mod quản lý diễn đàn. Các thành viên xem chi tiết tại đây

Thông số kỹ thuật mẫu thiết kế biệt thự 3 tầng mái thái 5 phòng ngủ tại Hà Nam

Chủ đề trong 'Xây dựng' bởi kientrucstq, 30/09/2016.

  1. 0 người đang xem box này (Thành viên: 0, Khách: 0)
  1. kientrucstq

    kientrucstq Thành viên quen thuộc

    Tham gia ngày:
    14/07/2016
    Bài viết:
    102
    Đã được thích:
    0
    Nhiều người thường nghĩ biệt thự 3 tầng thì phải lộng lẫy, xa hoa và rất tốn kém. Nhưng hôm nay chúng tôi sẽ mang đến cho bạn 1 cái nhìn hoàn toàn khác về thiết kế biệt thự đẹp 3 tầng. Tuy không tráng lệ nhưng vẫn đảm bảo vẻ đẹp, công năng sử dụng cũng như thể hiện đẳng cấp của gia chủ. Vậy còn chờ gì mà không cùng chúng tôi khám phá ngay mẫu thiết kế này.

    Thông số kỹ thuật mẫu thiết kế biệt thự 3 tầng mái thái 5 phòng ngủ tại Hà Nam

    1. Mẫu biệt thự: BT162409
    2. Số tầng: 3 tầng

    3. Chủ đầu tư: anh Hội

    4. Địa chỉ: Hà Nam

    5. Mặt tiền: 8m

    6. Chiều sâu: 18m

    7. Kích thước ô đất: 200m2

    8. Kích thước xây dựng: 144m2

    9. Kiến trúc sư thiết kế: Cù Hưng Quỳnh

    10. Kỹ sư kết cấu: Nguyễn Văn Hưng

    11. Kỹ sư điện nước: Nguyễn Văn Cao

    12. Năm thi công: 2016

    13. Kinh phí đầu tư dự kiến: 2 tỷ VNĐ

    14. Thông số công năng diện tích:

    - Tầng 1: 1 phòng khách, 1 phòng ngủ, 1 phòng bếp, 1 phòng vệ sinh chung - Diện tích: 144m2

    - Tầng 2: 3 phòng ngủ, 1 phòng sinh hoạt chung, 2 phòng vệ sinh chung - Diện tích: 144m2

    - Tầng 3: 1 phòng thờ, 1 phòng ngủ, 1 phòng vệ sinh chung, sân chơi - Diện tích 144m2

    Ngắm mẫu biệt thự 3 tầng mái thái đẹp mặt tiền 8m tại Hà Nam diện tích 144m2

    [​IMG]

    Phối cảnh view1 - Mẫu thiết kế biệt thự 3 tầng 5 phòng ngủ đẹp

    Thiết kế nhà vườn 3 tầng mái thái đẹp 5 phòng ngủ mang vẻ đẹp mê hồn

    Mẫu biệt thự đẹp 3 tầng 5 phòng ngủ được kiến trúc sư Quỳnh thiết kế trên khu đất rộng phía sau là mảnh đất rộng lớn. Thiết kế nhà 3 tầng hình chữ L sở hữu gam màu trắng ngoại thất, các đường nét trang trí ấn tượng cùng với lan can bằng sắt tạo nên sự sang trọng và đẳng cấp cho gia chủ. Mẫu biệt thự 3 tầng 150m2 sở hữu khối kiến trúc vững chắc với các cột trụ lớn được tính toán 1 cách tỉ mỉ cùng tỉ lệ vàng giúp chống đỡ sức nặng của cả ngôi nhà. Các cột trụ được trang trí hoa văn đẹp mắt cùng các gờ chỉ ấn tượng tạo nên sự hài hòa cũng như nhìn không bị nhàm chán. Hệ mái ngói màu đỏ kết hợp với màu trắng ngoại thất vưa mang lại sự trong trắng tinh khối, vừa thể hiện sức sống, sự nhiệt huyết, sức khỏe dồi dào.

    Mẫu thiết kế nhà 3 tầng có khoảng sân rộng lớn được lát gạch Hạ Long đỏ cao cấp có độ bền lớn, màu sắc khó phai và chịu được nhiệt tốt. Với kinh phí đầu tư là 2tỷ VNĐ, biệt thự 3 tầng mái thái mặt tiền 8m được thiết kế đẹp mắt, sang trọng và sở hữu không gian thiên nhiên xanh mát. Bao quanh ngôi nhà là cổng và tường rào cây xanh tiểu cảnh vừa đem lại không khí trong lành, thoáng mát vừa tạo cảm giác thư thái, thoải mái cho tâm hồn. Biệt thự cổ điển 3 tầng có ban công và chỗ vui chơi ở trên tầng 3 và ở các tầng đều bố trí các chậu cây cảnh ở ban công.

    [​IMG]

    Phối cảnh view2 - Mẫu thiết kế biệt thự 3 tầng kích thwuosc 8x18m đẹp tại Hà Nam

    Mẫu thiết kế nhà vườn 3 tầng hình chữ L đẹp sử dụng hệ thống cửa bắt mắt

    Biệt thự 3 tầng 8x18m mái thái sử dụng hệ cửa kính cường lực khung gỗ cho toàn bộ ngôi nhà. Sử dụng cửa kính vừa mang lại ánh sáng, sự thoáng đãng cho không gian nội thất vừa mang lại vẻ đẹp cho cả khối kiến trúc. Kính cường lực là loại kính được gia công ở nhiệt độ cao nên chịu được nhiệt và chịu lực tốt, khó vỡ. Hệ cửa kính được bao bọc bằng khung gỗ nên có độ bền cao, không bị mối mọt và khó bị cong vênh.

    Đặc biệt phần mái nhà chúng tôi lựa chọn cho mẫu thiết kế này chính là mái thái. Hệ mái ngói gồm những viên ngói màu đỏ ốp lên trên lớp xi măng mang lại sự mát mẻ cho cả ngôi nhà. Để nhìn không bị nhàm chán và tạo thêm điểm nhấn cho hệ mái, các kiến trúc sư STQ còn thiết kế thêm những viên ngói uốn lượn bao quanh mái của mẫu thiết kế biệt thự 3 tầng hình chữ L này.

    [​IMG]

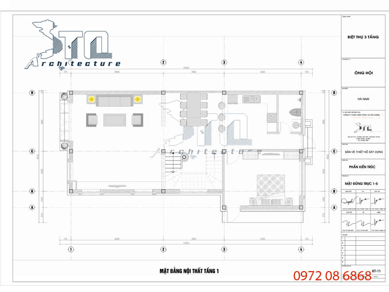
    Mặt bằng tầng 1 - Mẫu thiết kế biệt thự 3 tầng diện tích 144m2

    Thiết kế mẫu nhà 3 tầng mái thái đẹp tại Hà Nam - Mặt bằng tầng 1

    Mặt bằng tầng 1 gồm: 1 phòng khách, 1 phòng bếp ăn, 1 phòng ngủ và 1 phòng vệ sinh chung.

    Khi bước từ sảnh chính vào là không gian phòng khách rộng rãi được bố trí các đồ nội thất hiện đại, tiện nghi. Bên cạnh phòng khách của biệt thự 3 tầng mái thái 144m2 là phòng bếp ăn. Phòng bếp ăn rộng rãi có lối liên thông ra sân vườn tạo nên sự thuận tiện khi di chuyển mà không làm ảnh hưởng đến không gian của phòng khách. Không gian phòng bếp ăn được bố trí 1 bộ bàn ăn dài ở giữa phòng, khu nấu nướng tiện nghi với các dụng cụ nấu hiện đại.

    Ngoài ra tầng 1 còn có 1 phòng ngủ để làm nơi nghỉ ngơi cho người cao tuổi. Phòng ngủ cũng được bố trí nội thất thiết yếu và có cửa sổ để tạo sự thông thoáng mang đến những giấc ngủ ngon và sâu hơn. Phòng vệ sinh chung của tầng 1 được thiết kế gần cửa phụ và cầu thang.

    [​IMG]

    Mặt bằng tầng 2 - Mẫu thiết kế biệt thự 3 tầng diện tích 144m2 5 phòng ngủ

    Mẫu thiết kế biệt thự 3 tầng 5 phòng ngủ đẹp - Mặt bằng tầng 2

    Biệt thự 3 tầng 8x18m mái thái với mặt bằng tầng 2 gồm 3 phòng ngủ lớn và 1 phòng sinh hoạt chung.

    Cả 2 phòng ngủ đều được bố trí nội thất thiết yếu và có phòng thay đồ. Mọi hoạt động cá nhân đều được gói gọn trong căn phòng tạo không gian riêng tư thoải mái cho vợ chồng gia chủ. Ngoài ra kiến trúc nhà đẹp 3 tầng còn có 2 phòng ngủ vệ sinh khép kín ở bên cạnh. Ban công ở phòng ông bà hướng ra ngoài cổng vừa mang lại không gian thoáng đãng cho căn phòng vừa giúp ông bà quan sát những khung cảnh đang diễn ra xung quanh.

    Ngoài ra tại trung tâm của tầng 2 bạn có thể thấy sự hiện diện của không gian phòng sinh hoạt chung. Đây là nơi cả gia đình quây quân bên nhau chia sẻ cho nhau những câu chuyện buồn vui. Đây cũng chính là không gian gắn kết các thành viên trong gia đình lại với nhau

    [​IMG]

    Mặt bằng tầng 3 - Mẫu thiết kế biệt thự 3 tầng diện tích 144m2

    Mẫu thiết kế biệt thự 3 tầng mái thái đẹp - Mặt bằng tầng 3

    Phòng thờ ở tầng 3 của biệt thự mái ngói thái 3 tầng mặt tiền 8m là nơi thiêng liêng để con cháu tưởng nhớ đến ông bà, tổ tiên và cầu mong sự an lành, hạnh phúc, đầm ấm cho cả gia đình.

    Bên canh phòng thờ là phòng ngủ có vệ sinh khép kín được thiết kế gần giống như phòng ngủ tầng 2. Sân chơ được bố trí ở 2 bên cầu thang là không gian để trẻ nhỏ vui chơi, đùa nghịch bên gia đình cũng như để phơi phóng và đặt téc nước. Không gian mở mang đến sự thoáng đãng và sáng sủa cho cả mẫu biệt thự 3 tầng mặt tiền 8m.

    Để quý vị và các bạn có cái nhìn khái quát và hiểu rõ hơn về thiết kế của biệt thự 3 tầng mái thái 8x18m, chúng tôi xin giới thiệu một số hình ảnh của bản vẽ biệt thự 3 tầng 3 phòng ngủ này

    [​IMG]

    Mặt bằng mái - Mẫu thiết kế biệt thự 3 tầng diện tích 144m2 5 phòng ngủ

    [​IMG]



    Mặt đứng trục D-A - Mẫu thiết kế biệt thự 3 tầng diện tích 144m2 5 phòng ngủ

    [​IMG]



    Mặt đứng trục A-D - Mẫu thiết kế biệt thự 3 tầng diện tích 144m2 5 phòng ngủ

    [​IMG]

    Mặt đứng trục 1-4 - Mẫu thiết kế biệt thự 3 tầng diện tích 144m2 5 phòng ngủ

    Mẫu biệt thự 3 tầng mái thái 6 phòng ngủ trên đây là phương án chúng tôi giới thiệu để các bạn tham khảo. Đây là mẫu nhà đẹp đang trở thành xu hướng của năm nay mà các gia chủ lựa chọn để xây dựng cho ngôi nhà tương lai của mình. Bên cạnh mẫu biệt thự 3 tầng mặt tiền 8m này quý vị có thể tham khảo thêm mẫu biệt thự 3 tầng hiện đại 6 phòng ngủ để có sự so sánh về phong cách nhé.

    CÔNG TY CỔ PHẦN XÂY DỰNG VÀ KIẾN TRÚC STQ

    Địa chỉ: 51/71 HOÀNG VĂN THÁI - THANH XUÂN - HÀ NỘI

    Hotline: 097 208 6868 - kientrucstq@gmail.com

Chia sẻ trang này