1. Tuyển Mod quản lý diễn đàn. Các thành viên xem chi tiết tại đây

Thông số mẫu thiết kế nhà phố 3 tầng hiện đại 80m2 ở Hà Nội NP115275

Chủ đề trong 'Xây dựng' bởi kientrucstq, 30/08/2016.

  1. 1 người đang xem box này (Thành viên: 0, Khách: 1)
  1. kientrucstq

    kientrucstq Thành viên quen thuộc

    Tham gia ngày:
    14/07/2016
    Bài viết:
    102
    Đã được thích:
    0
    Mới đây, công ty kiến trúc STQ có nhận được yêu cầu từ phía vợ chồng anh Hùng ở Hà Nội muốn thiết kế ngôi nhà hiện đại đảm bảo công năng sử dụng, hợp với sở thích của các thành viên trong gia đình và thể hiện được phong cách riêng. Nhận được yêu cầu từ phía gia đình, các kỹ sư của chúng tôi bắt tay vào thiết kế và đưa ra bản vẽ nhà phố 3 tầng với kiến trúc độc đáo, mang tới sự hài lòng cho mọi thành viên khi có một không gian sống lý tưởng, hoàn hảo.

    Thông số mẫu thiết kế nhà phố 3 tầng hiện đại 80m2 ở Hà Nội:
    1. Mẫu nhà phố: NP115275

    2. Số tầng: 3 tầng

    3. Chủ đầu tư: Anh Hùng

    4. Địa chỉ: Hà Nội

    5. Mặt tiền: 9m

    6. Chiều sâu: 10m

    7. Kích thước ô đất: 100m2

    8. Kích thước xây dựng: 80m2

    9. Kiến trúc sư thiết kế: Phạm Thành Tư

    10.Kỹ sư kết cấu: Nguyễn Văn Hưng

    11.Kỹ sư điện nước: Nguyễn Văn Cao

    12.Năm thi công: 2016

    13.Kinh phí đầu tư dự kiến: 1tỷ VNĐ

    14.Thông số công năng diện tích:

    - Tầng 1: 1 phòng khách, 1 phòng ngủ,1 phòng bếp ăn, 1 phòng vệ sinh chung, diện tích 80m2

    - Tầng 2: 1 phòng ngủ có phòng vệ sinh khép kín, 2 phòng ngủ,1 phòng vệ sinh chung, diện tích 80m2.

    - Tầng 3: 1 phòng thờ, phòng giặt, sân phơi, diện tích 80m2.

    Chiêm ngưỡng vẻ đẹp mẫu thiết kế nhà phố 3 tầng đẹp 80m2 ở Hà Nội
    Theo những thông tin anh chia sẻ, được biết anh sinh năm 1978 (Mậu Ngọ) quẻ mệnh Tốn Mộc, thuộc Đông Tứ Mệnh nên chúng tôi lựa chọn ngôi nhà xây dựng theo hướng Bắc (Sinh Khí). Hướng Bắc là một trong những hướng rất tốt, mang lại may mắn, tài lộc và sự bình an cho gia đình, hợp phong thuỷ với mảnh đất hiên tại và với tuổi của anh Hùng. Hơn nữa, chọn hướng Bắc sẽ hạn chế được ánh sáng mặt trời chiếu thẳng vào không gian, mà lại thoáng gió.

    Tone màu trắng tự nhiên, nhẹ nhàng được lựa chọn làm tone màu chủ đạo cho mẫu thiết kế. Sơn ngoại thất có độ phủ bóng cao, chống thấm nước, dễ lau chùi bảo vệ lâu dài cho tường nhà như của Mykolor hay Dulux là lựa chọn tối ưu cho những ngôi nhà phố sang trọng và hiện đại. Trên thị trường còn có rất nhiều màu sơn khác nhau với giá thành phải chăng để các chủ đầu tư có thể cân nhắc lựa chọn theo sở thích cũng như nguồn đầu tư hiện có.

    Ngôi nhà phố 3 tầng 80m2 4 phòng ngủ ở Hà Nội sở hữu những đường nét mạnh mẽ, tuy đơn giản nhưng vẫn thể hiện được sự bề thề, khoẻ khoắn của mẫu kiến trúc. Hai cột trụ vuông đăng đối ở sảnh chính tầng 1 và ban công tầng 2 chống đỡ, tạo sự vững chãi, chắc chắn. Chúng tôi sử dụng những đường gờ chỉ kẻ nhỏ quanh tường cùng với gạch inax màu xám phần chữ A áp mái tạo điểm nhấn thêm cho vẻ ngoại thất.

    [​IMG]

    [​IMG]Phối cảnh 1: Thiết kế nhà phố 3 tầng 4 phòng ngủ ở Hà Nội

    Bản vẽ nhà phố 3 tầng 80m2 với vật liệu xây dựng cao cấp


    Cũng giống như những mẫu thiết kế nhà phố hiện đại khác, lựa chọn đá rối ốp chân tường là phương án tối ưu nhất bởi chất lượng và giá trị thẩm mỹ mà nó mang lại. Hệ đá rối ốp chân tường màu ghi bảo vệ tốt chân tường khỏi nứt nẻ, rong rêu, và không làm bẩn màu tường trắng. Ngoài ra đá rối sử dụng làm vật liệu trang trí khiến cho mẫu thiết kế thêm sinh động, khoẻ khoắn.

    Thêm vào đó, chúng tôi còn lựa chọn đá ong xám ốp tường có độ dày 10mm với khả năng chịu nhiệt chịu lực cao nổi bật trên nền sơn trắng sẽ làm cho vẻ đẹp ngoại thất thêm ấn tượng, hiện đại và bảo vệ tốt nhất cả mẫu kiến trúc, luôn bền đẹp theo thời gian.

    Nhà phố 4 tầng 80m2 được lắp đặt toàn bộ hệ thống cửa kính gỗ phù hợp với phong cách sang trọng của mẫu thiết kế. Với sự tính toán kỹ lưỡng về vị trí lặp đặt và kích thước, hệ thống cửa ra vào và cửa sổ mở ra một không gian thoáng đãng, mát mẻ, gần gũi với thiên nhiên và khiến cho nội thất thêm lung linh, sáng sủa.

    Ngoài ra, ngoại thất của ngôi nhà còn sử dụng một số vật liệu cao cấp khác để góp phần tôn lên vẻ đẹp và tạo điểm nhấn cho mẫu kiến trúc. Ban công các tầng sử dụng lan can thép sơn đen chống rỉ sét, có hoa văn trang trí vừa mang sự dắn chắc vừa có nét mền mại, bền đẹp và vô cùng an toàn. Những lam che nắng che mưa làm bằng thép sơn giả gỗ kiên cố, vững chãi và những console phần áp mái chống đỡ mái vừa có tác dụng trang trí. Tất cả khiến cho tổng thể kiến trúc đa dạng, hiện đại và khoẻ khoắn.

    Mái thái chữ L màu ghi đăng đối với độ dốc hợp lý dễ thoát nước và có khả năng chống nóng tốt, làm cho không gian bên trong mát mẻ vào mùa hè, giữ nhiệt vào mùa đông, phát huy tối đa khả năng bảo vệ nội thất cho ngôi nhà.

    [​IMG][​IMG]

    Phối cảnh 2: Thiết kế nhà phố 3 tầng 4 phòng ngủ ở Hà Nội

    Chi tiết mặt bằng công năng mẫu nhà phố 3 tầng 4 phòng ngủ ở Hà Nội
    [​IMG][​IMG]Mặt bằng tầng 1: Thiết kế nhà phố 3 tầng 4 phòng ngủ ở Hà Nội

    Mẫu nhà phố 3 tầng đẹp 4 phòng ngủ với mặt bằng tầng 1


    Bước qua khoảng sân chơi trước nhà rộng 21m2 lên 3 bậc tam cấp tiến tới không gian phòng khách diện tích 17m2 với đầy đủ đồ nội thất sang trọng như: 1 bộ bàn ghế sofa, ti vi, tủ. Một cửa sổ kích thước lớn với chiều rộng hơn 2m thu gió và đem một lượng ánh sáng cho không gian nội thất.

    Phòng bếp ăn rộng 13m2 với bộ bàn ăn 6 ghế nằm trung tâm và dãy bàn ăn thiết kế sát tường khiến phòng khách thêm gọn gàng và tiết kiệm diện tích mặt bằng.

    Không gian tầng 1 còn có phòng ngủ rộng 14m2 dành cho ông được trang bị các đồ dùng cần thiết gồm giường, ti vi, tủ quần áo. Phòng ngủ được thiết kế thêm 1 cửa ra vào mở ra sảnh chính, thuận tiện trong việc đi lại, sinh hoạt hàng ngày vẫn đảm bảo không gian yên tĩnh, thoải mái để ông nghỉ ngơi.

    Phòng vệ sinh chung rộng 5.4m2 giúp các thành viên dễ dàng sử dụng khi cần thiết.

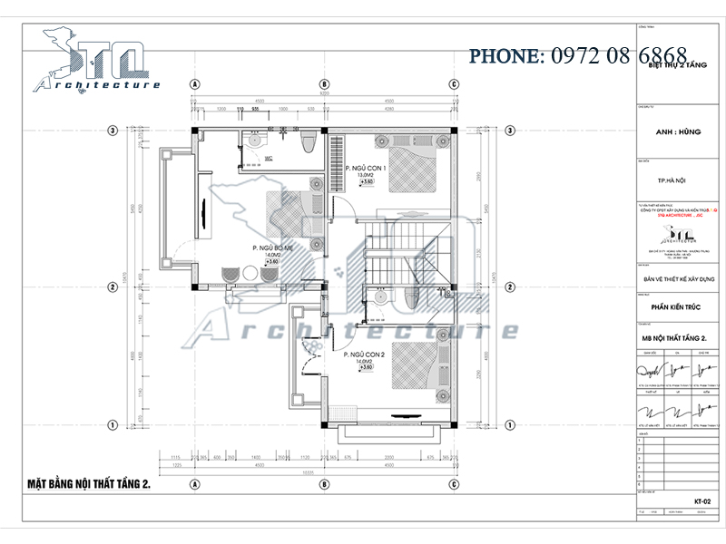
    [​IMG][​IMG]Mặt bằng tầng 2: Thiết kế nhà phố 3 tầng 4 phòng ngủ ở Hà Nội

    Mẫu nhà phố 3 tầng đẹp 4 phòng ngủ với mặt bằng tầng 2

    Mặt bằng tầng 2 có 3 phòng ngủ gồm phòng của bố mẹ và các con. Các phòng ngủ đều được bố trí các đồ nội thất tiện nghi, phù hợp với sở thích và thẩm mỹ của các thành viên gồm: giường, ti vi, tủ quần áo, máy tính cá nhân. Phòng ngủ bố mẹ và 1 phòng ngủ của con có diện tích 14m2 có cửa hướng ra ban công và cửa sổ thoáng gió mở ra không gian thoáng đãng, thư thái khi đứng ngoài ban công ngắm nhìn khung cảnh xung quanh. Phòng ngủ bố mẹ có phòng vệ sinh khép kín tiện lợi và tạo không gian riêng tư cho 2 vợ chồng. Phòng ngủ còn lại diện tích 13m2.

    Phòng vệ sinh chung rộng 4m2 nằm sát cầu thang phục vụ nhu cầu của các thành viên, tiết kiệm diện tích cũng như nguồn chi phí cho gia chủ.

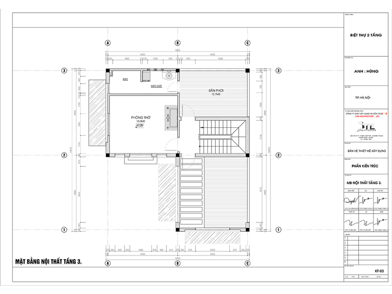
    [​IMG][​IMG]Mặt bằng tầng 3: Thiết kế nhà phố 3 tầng 4 phòng ngủ ở Hà Nội

    Mẫu nhà phố 3 tầng đẹp 4 phòng ngủ với mặt bằng tầng 3

    Chúng tôi thiết kế phòng thờ rộng 15m2 trên tầng 3 hợp phong thuỷ và đảm bảo sự uy nghiêm, yên tĩnh. Với 2 cửa sổ kính làm cho không gian thoáng mát, gần gũi mà không hề hiu quạnh.

    Không gian còn lại của tầng 3 gồm phòng giặt đồ rộng 6m2 và sân chơi nằm 2 bên so với cầu thang là không gian lý tưởng cho các thành viên thư giãn tận hưởng không khí trong lành và ngắm nhìn khung cảnh thành phố từ trên cao.

    [​IMG] [​IMG]Mặt bằng mái: Thiết kế nhà phố 3 tầng 4 phòng ngủ ở Hà Nội

    Bản thiết kế nhà phố 3 tầng 80m2 có mái thái chữ L hết sức kiên cỗ, vững chắc, được tính toán khoa học, kỹ lưỡng đảm bảo chính xác các thông số kỹ thuật vừa phát huy tối đa công năng vừa mang giá trị thẩm mỹ.

    [​IMG][​IMG]Mặt đứng trục A-C: Thiết kế nhà phố 3 tầng 4 phòng ngủ ở Hà Nội

    Chiều rộng mẫu thiết kế là 10.3m, chiều cao tầng 1 và tầng 2 là 3.6m, chiều cao tầng 3 là 3.1m, chiều cao mái là 2.2m. Kích thước và vị trí lắp đặt các cửa sổ đăng đối, cân xứng với các kiểu dáng khác nhau tạo sự đa dạng, mới mẻ cho phong cách kiến trúc.

    [​IMG]Mặt đứng trục 3-1: Thiết kế nhà phố 3 tầng 4 phòng ngủ ở Hà Nội

    Chiều sâu của ngôi nhà là 11m, hệ đá rối ốp chân tường cao 1.2m, chiều rộng và chiều cao cửa chính lần lượt là 2.5m và 2.7m, chiều dài ban công các tầng là 3.7m.

    Bản vẽ thiết kế nhà phố 3 tầng đẹp 4 phòng ngủ ở Hà Nội đảm bảo các thông số kỹ thuật cũng như công năng sử dụng và được đánh giá cao về mặt thẩm mỹ đem lại không gian sống lý tưởng cho gia đình anh Hùng. Với lối kiến trúc đa dạng, linh hoạt khiến ngôi nhà thêm hiện đại, mang phong cách riêng, khó lẫn so với các mẫu nhà phố khác.

    Nếu yêu thích mẫu nhà phố 3 tầng 80m2 trên hãy liên hệ với chúng tôi để được tư vấn cụ thể hơn.

    Hotline: 0986 08 6868.

Chia sẻ trang này