1. Tuyển Mod quản lý diễn đàn. Các thành viên xem chi tiết tại đây

Tổng quát mẫu thiết kế nhà biệt thự 3 tầng đẹp mặt tiền 14,7m tại Nghệ An

Chủ đề trong 'Xây dựng' bởi kientrucstq, 23/08/2016.

  1. 0 người đang xem box này (Thành viên: 0, Khách: 0)
  1. kientrucstq

    kientrucstq Thành viên quen thuộc

    Tham gia ngày:
    14/07/2016
    Bài viết:
    102
    Đã được thích:
    0
    Luôn am hiểu, nhanh nhạy nắm bắt mong muốn của khách hàng cũng như không ngừng sáng tạo trong mỗi mẫu thiết kế, các kiến trúc sư của công ty Kiến trúc STQ ngày càng nhận được nhiều những yêu cầu của các chủ đầu tư trên mọi miền. Mới đây, công ty nhận được yêu cầu từ phía gia đình anh Tuấn ở Nghệ An về một ngôi nhà lô phố hiện đại, tiện nghi, mang được phong cách riêng, hợp với sở thích của các thành viên trong gia đình. Hiểu được điều ấy, chúng tôi đưa ra mẫu thiết kế biệt thự 3 tầng đẹp được đánh giá cao về công năng sử dụng cũng như thẩm mỹ, phù hợp với gia chủ. Và nếu yêu thích mẫu thiết kế này, quý vị có thể tham khảo những thông tin mà chúng tôi cung cấp dưới đây.

    Thông số mẫu thiết kế biệt thự 3 tầng đẹp 150m2 ở Nghệ An:
    1. Mẫu nhà phố: BT236057

    2. Số tầng: 3 tầng

    3. Chủ đầu tư: Anh Tuấn

    4. Địa chỉ: Nghệ An

    5. Mặt tiền: 14.7m

    6. Chiều sâu: 11m

    7. Kích thước ô đất: 500m2

    8. Kích thước xây dựng: 150m2

    9. Kiến trúc sư thiết kế: Phạm Thành Tư

    10.Kỹ sư kết cấu: Nguyễn Văn Hưng

    11.Kỹ sư điện nước: Nguyễn Văn Cao

    12.Năm thi công: 2016

    13.Kinh phí đầu tư dự kiến: 2tỷ VNĐ

    14.Thông số công năng diện tích:

    - Tầng 1: 1 phòng khách, 1 phòng ngủ có phòng vệ sinh khép kín,1 phòng bếp ăn, 1 phòng vệ sinh chung, diện tích 150

    - Tầng 2: 1 phòng sinh hoạt chung, 1 phòng ngủ có phòng vệ sinh khép kín, 2 phòng ngủ,1 phòng vệ sinh chung, diện tích 150m2.

    - Tầng 3: 1 phòng thờ, 2 phòng ngủ, 1 phòng vệ sinh chung, diện tích 150m2.

    Ngắm nhìn bản thiết kế biệt thự 3 tầng 150m2 hiện đại ở Nghệ An
    Được biết anh Tuấn sinh năm 1981 (Tân Dậu) nên chúng tôi lựa chọn hướng nhà theo hướng Đông Nam (Sinh Khí) hợp với tuổi của gia chủ cũng như mảnh đất hiện tại. Đây là một trong những hướng nhà rất tốt, đem lại tài lộc, danh tiếng, thăng quan phát tài, hơn nữa sẽ giúp căn nhà của bạn mát mẻ vào mùa hè và ấm áp vào mùa đông.

    Ngôi nhà sở hữu màu sơn trắng làm chủ đạo. Để thích ứng với khí hậu nhiệt đới gió mùa, chúng tôi lựa chọn loại sơn cao cấp chống rêu mốc, thấm nước, có độ phủ bóng cao để ngôi nhà bền đẹp theo thời gian. Thêm vào đó, để tạo điểm nhấn cũng như tránh sự nhàm chán cho lối kiến trúc, các kỹ sư đã sử dụng kết hợp với màu xanh xám của đá rối, màu vàng nâu của gạch ốp giả gỗ khiến cho ngôi nhà thêm mạnh mẽ, vững chắc mà thân thiện, hài hoà.

    [​IMG]

    Phối cảnh 1: Mẫu thiết kế biệt thự 3 tầng đẹp 150m2 ở Nghệ An.

    Ấn tượng với lối kiến trúc đầy sáng tạo trong mẫu biệt thự 3 tầng ở Nghệ An


    Hình ảnh mẫu thiết kế nhà đẹp 3 tầng 150m2 hiện lên mang tầm vóc bề thế, đầy thu hút. Có thể dễ dàng với kết cấu móng được xây dựng kiên cố, chắc chắn, nâng tổng thể khối kiên trúc lên cao so với mặt bằng chung tạo sự đồ sộ, cao ráo, hiện đại.

    Mẫu thiết kế sở hữu những hình khối đơn giản, vuông vức, được kết hợp với nhau linh hoạt, hài hoà tạo thành một khối thống nhất. Cột trụ tiền sảnh chính với kích thước lớn ốp đá sang trọng nâng đỡ cho hệ mái. Đồng thời ở tầng 2 và tầng 3, chúng tôi cũng thiết kế mái đua ra phía trước, hay những lam kính kiên cố tạo điểm khác biệt và phát huy tốt tác dụng che nắng, che mưa, bảo vệ nội thất.

    Ngoài ra, để tránh sự nhàm chán đơn điệu, các kiến trúc sư sử dụng những đường gờ chỉ nhở bao quanh mẫu thiết kế. Những đường nét tạo hình khối thanh thoát để làm nổi bật hơn , tạo sự khác biệt từ phần cột, khung cửa hay giữa các tầng với nhau.

    [​IMG]

    Phối cảnh 2: Mẫu thiết kế biệt thự 3 tầng đẹp 150m2 ở Nghệ An.

    Bản thiết kế với sự kết hợp linh hoạt của các vật liệu cao cấp, sang trọng.
    Diện tích lớn đá rối màu xanh xám được sử dụng ốp chân tường là sự lựa chọn hợp lý nhất. Đá rối là vật liệu cao cấp, được đánh giá cao về công dụng, bảo vệ tốt nhất, chống thấm mốc, dễ lau chùi, bền đẹp qua quá trình sử dụng đồng thời mang giá trị thẩm mỹ. Với màu xanh trang nhã, khiến cho ngôi nhà của bạn thêm phần hiện đại, khoẻ khoắn. Cùng với đó là ốp gạch giả gỗ sử dụng làm điểm nhấn ở mặt tiền tầng 1.

    Toàn bộ hệ thống cửa ra vào và cửa sổ được lắp đặt là cửa kính gỗ. Với khả năng cách âm hoàn hảo, chất lượng, bền đẹp, với kích thước hợp lý, đăng đối, cung cấp ánh sáng vừa đủ cho không gian, bảo vệ ngôi nhà khỏi tác động xấu của thời tiết.

    Để góp phần làm nên phong cách hiện đại, trẻ trung cho mẫu nhà 3 tầng 6 phòng ngủ này, chúng tôi còn tận dụng chất liệu kính cường lực làm phần lan can tầng 2 và 3 đảm bảo sự an toàn cho người sử dụng. Thêm vào đó, khoảng sân thượng tầng 3 được thiết kế mái kính trong suốt, mang giá trị thẩm mỹ lớn thể hiện phong cách mới lạ, đẳng cấp tạo không gian mở cho các thành viên thư giãn, chăm sóc cây cối.

    Bản thiết kế biệt thự 3 tầng đẹp 150m2 sử dụng hệ mái bằng kiên cố phù hợp với lối kiến trúc hiện đại. Toàn bộ trần nhà sử dụng gỗ tự nhiên thân thiện với môi trường, tạo sự sang trọng, không gian thoáng mát cho phần nội thất.

    [​IMG]

    Phối cảnh 3: Mẫu thiết kế biệt thự 3 tầng đẹp 150m2 ở Nghệ An.

    Chi tiết mặt bằng công năng mẫu biệt thự 3 tầng 6 phòng ngủ ở Nghệ An
    [​IMG]

    Mặt bằng tổng thể: Mẫu thiết kế biệt thự 3 tầng đẹp 150m2 ở Nghệ An.

    Bản vẽ biệt thự 3 tầng mặt tiền đẹp ở Nghệ An với mặt bằng tổng thể.


    Nhìn bao quát, khu đất nhà anh Tuấn đang sở hữu có địa thế khá đẹp và diện tích tương đối lớn khoảng 500m2. Ngoài khoảng sân lớn trước nhà, chúng tôi còn bố trí một khu vực tiểu cảnh với không gian trong lành, thoáng đãng, là nơi lí tưởng cho các thành viên trồng các loại cây cảnh, hoa theo sở thích và ngồi thư giãn, nghỉ ngơi. Đồng thời bao quanh nhà cũng được bố trí cây cảnh trồng men theo lối đi càng làm cho không gian thêm mát mẻ, dịu bớt cái nắng gay gắt vào mùa hè.

    [​IMG]

    Mặt bằng tầng 1: Mẫu thiết kế biệt thự 3 tầng đẹp 150m2 ở Nghệ An.

    Bản vẽ biệt thự 3 tầng mặt tiền đẹp ở Nghệ An với mặt bằng tầng 1


    Ngôi biệt thự 3 tầng mặt tiền 14m được thiết kế gồm 1 phòng khách, 1 phòng ngủ và phòng bếp ăn ở tầng 1. Phòng khách có diện tích 23m2 có cửa lớn rộng 2m mở ra không gian rộng rãi, thu hút gió và ánh sáng cho căn phòng. Phòng khách được bố trí 1 bộ bàn ghế sofa, tủ, ti vi vô cùng tiện dụng.

    Ngay cạnh phòng ngủ là phòng bếp ăn với diện tích 25.4m2 có bộ bàn ăn 8 ghế đặt gọn gàng ở trung tâm. Hai phía được bố trí 2 cửa lớn tạo không khí thoáng đãng, thoải mái, dễ dàng thoát mùi thức ăn còn vương bám. Bàn ăn hình chũ U nằm sát tường được thiết kế khoa học nhằm tiện lợi trong quá trình sử dụng cũng như tiết kiệm diện tích mặt bằng. Một cửa ra vào nhỏ được bố trí thuận tiện cho quá trình đi lại của gia đình, hướng ra khu vực tiểu cảnh.

    Một phòng ngủ có phòng vệ sinh khép kín được xây dựng với đầy đủ nội thất sang trọng như: giường, tủ quần áo, bàn làm việc, ti vi, một cửa lớn hướng ra sân trước nhà làm cho không gian phòng ngủ thêm dễ chịu, hoà hợp với thiên nhiên. Phòng ngủ này thích hợp cho người cao tuổi trong nhà để tiện cho quá trình sinh hoạt, đi lại.

    Một phòng vệ sinh chung được thiết kế nằm sát cầu thang đáp ứng nhu cầu sử dụng của các thành viên trong gia đình.

    [​IMG]

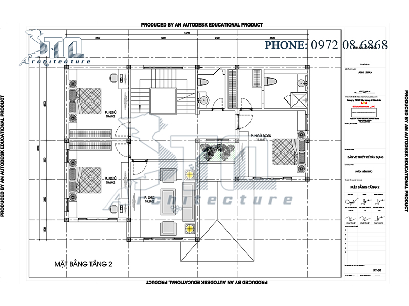
    Mặt bằng tầng 2: Mẫu thiết kế biệt thự 3 tầng đẹp 150m2 ở Nghệ An.

    Bản vẽ biệt thự 3 tầng mặt tiền đẹp ở Nghệ An với mặt bằng tầng 2


    Phòng sinh hoạt chung rộng 18.3m2 được trang bị đầy đủ đồ nội thất tiện nghi tạo không gian riêng tư cho cả gia đình, quây quần trò chuyện vào mỗi buổi tối hay những khi rảnh rỗi.

    Không gian tầng 2 bao gồm 3 phòng ngủ trong đó 1 phòng có phòng vệ sinh khép kín diện tích 16.6m2 và 2 phòng rộng 10.6m2. Các phòng đều được bố trí ngăn nắp với các đồ dùng phục vụ nhu cầu nghỉ ngơi cũng như làm việc, học tập gồm: giường, ti vi, máy tính, tủ quần áo, bàn làm việc, bàn trang điểm. Không gian phòng ngủ được mở rộng nhờ hệ cửa sổ kính gỗ lớn cung cấp ánh sáng và gió tự nhiên đồng thời làm không gian nội thất thêm sáng sủa, lung linh hơn.

    Một phòng vệ sinh chung được thiết kế cạnh cầu thang vừa tiện lợi khi sử dụng vừa tiết kiệm tối đa diện tích cũng như nguồn chi phí cho gia chủ.

    [​IMG]

    Mặt bằng tầng 3: Mẫu thiết kế biệt thự 3 tầng đẹp 150m2 ở Nghệ An.

    Bản vẽ biệt thự 3 tầng mặt tiền đẹp ở Nghệ An với mặt bằng tầng 3


    Chúng tôi thiết kế phòng thờ rộng 15m2 trên tầng 3 hợp phong thuỷ cũng như đảm bảo sự yên tĩnh, uy nghiêm cần thiết, là nơi con cháu tưởng nhớ và thể hiện lòng thành kính, biết ơn đối với tổ tiên.

    Hai phòng ngủ với diện tích 10.6m2 đều được bố trí đầy đủ đồ nội thất, đáp ứng nhu cầu sử dụng của các thành viên hay làm phòng nghỉ ngơi khi khách tới chơi nhà.

    Một phòng vệ sinh chung ngay cạnh cầu thang thuận tiện trong quá trình sử dụng.

    Diện tích còn lại trên tầng 3 là khoảng sân chơi, sân phơi. Gia chủ có thể trồng các loại cây yêu thích để tạo không khí trong lành, tươi mát, gần gũi với thiên nhiên.

    [​IMG]

    Mặt bên: Mẫu thiết kế biệt thự 3 tầng đẹp 150m2 ở Nghệ An.

    Chiều sâu mẫu thiết kế là 11m, chiều cao tầng 1 là 3.9m, chiều cao tầng 2 và 3 là 3.3m. Các đường gờ chỉ cũng như hệ thống vị trí các cửa được thể hiện tỉ mỉ, chi tiết giúp cho gia chủ cũng như đơn vị thi công dễ dàng theo dõi.

    Mẫu biệt thự 3 tầng 6 phòng ngủ ở Nghệ An đảm bảo hoàn thiện về các thông số kỹ thuật, công năng sử dụng và được đánh giá cao về mặt thẩm mỹ. Với chi phí đầu tư khoảng 2 tỷ đồng, gia đình anh Tuấn sở hữu một căn nhà phố hiện đại 150m2, mang lối kiến trúc riêng, ấn tượng thể hiện phong cách, cá tính và vị thế của gia chủ.

    Nếu quý vị yêu thích mẫu biệt thự này hãy liên hệ ngay với chúng tôi để được tư vấn chi tiết và cung cấp mọi thông tin cần thiết.

    Hotline:0972 08 6868

Chia sẻ trang này