1. Tuyển Mod quản lý diễn đàn. Các thành viên xem chi tiết tại đây

Tư vấn thiết kế nhà đẹp diện tích 60m2

Chủ đề trong 'Đất Sài Gòn' bởi thietkebietthu, 18/03/2016.

  1. 1 người đang xem box này (Thành viên: 0, Khách: 1)
  1. thietkebietthu

    thietkebietthu Thành viên mới

    Tham gia ngày:
    18/11/2014
    Bài viết:
    76
    Đã được thích:
    0
    Tư vấn thiết kế nhà đẹp diện tích 60m2 công ty xây dựng Houseland sẽ giúp bạn tư vấn thiết kế mẫu nhà phố hiện đại theo phong các đơn giản nhưng đầy đủ tiện nghi và thoáng đãng.
    Diện tích xây dựng : 6x10m
    Dựa theo yêu cầu của gia chủ về công năng các phòng như sau :

    Tầng 1: 01 phòng khách, 01 bếp và phòng ăn, 02 phòng ngủ, 01 WC , 01 Gara.
    Tầng 2: 01 phòng ngủ, 1 sân phơi và một phòng vệ sinh, 01 Phòng làm việc, 01 phòng thờ.
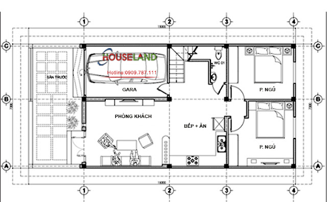
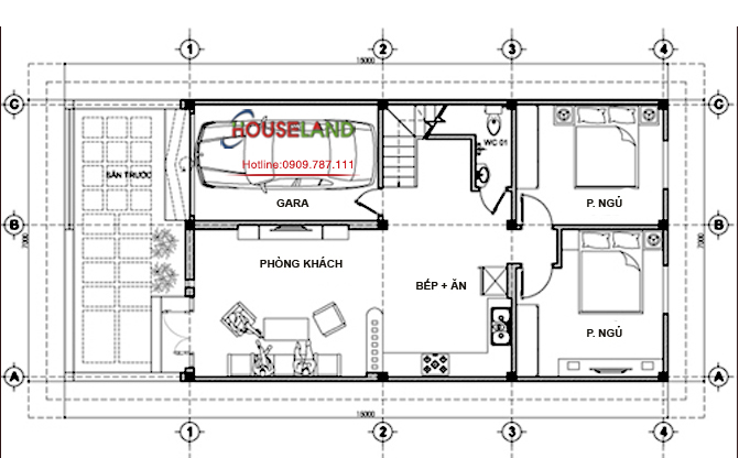
    phương án thiết kế mặt bằng cho căn nhà phố
    [​IMG]
    Phương án thiết kế mặt bằng tầng 1 với không gian sân trước có thể trồng cây cảnh và hoa, bố trí sắp xếp hợp lý công năng giữa các phòng.
    [​IMG]
    Mặt bằng thiết kế tầng 2 với khoảng sân phơi rộng rãi vừa sử dụng làm sân phơi vừa làm chỗ vui chơi giải trí . Ban công nhỏ nhắn xinh xắn là góc view thành phố đẹp về đêm.
    [​IMG]
    Hình ảnh phối cảnh căn nhà phố hiện đại 60m2 với thiết kế kiến trúc khỏe khoắn, năng động gam màu nhã nhặn và lịch sự.
    Dưới đây là hình ảnh về thiết kế nội thất phòng khách và phòng ăn cho gia đình
    [​IMG]
    Với diện tích 60m2, ít phòng nên thiết kế phòng khách có khoảng không gian sinh hoạt chung rộng rãi từ khâu lựa chọn đồ đến vị trí kê đồ, cảm giác thật phóng khoáng. Gam màu trắn chủ đạo làm tăng thêm sự tinh tế và đẳng cấp hơn .
    [​IMG]
    Phòng bếp được thiết kế liền với phòng ăn rất tiện nghi và tiết kiệm diện tích, đây là thiết kế phổ biến trong các gia đình Việt. Nội thất và cách bày trí đơn giản nhưng nhã nhặn và hài hòa .
    Để được tham khảo nhiều công trình và tư vấn thiết kế nhà, biệt thự phố , biệt thự nhà phố, bạn liên hệ : 0909787111 để được tư vấn trực tiếp
    nguồn : mẫu thiết kế nhà phố 60m2
  2. thietkebietthu

    thietkebietthu Thành viên mới

    Tham gia ngày:
    18/11/2014
    Bài viết:
    76
    Đã được thích:
    0
    Chỉ với 60m2, với thiết kế khéo léo bạn vừa mang lại không gian sống thoải mái mà lại đầy đủ tiện nghi cho cả gia đình, liên hệ để được tư vấn thêm theo hotline : 0909787111
  3. thietkebietthu

    thietkebietthu Thành viên mới

    Tham gia ngày:
    18/11/2014
    Bài viết:
    76
    Đã được thích:
    0
    khách hàng có nhu cầu thiết kế nhà đẹp hiện đại xu hướng thiết kế 2016 vui lòng liên hệ tới công ty houseland nhé

Chia sẻ trang này